Domy mieszkalneSprzedam za 385 000 zł
Ogł. nr 899239
z 7 stycznia
BIURO NIERUCHOMOŚCI
SZULC& SZULC
Powierzchnia działki: 700 m2
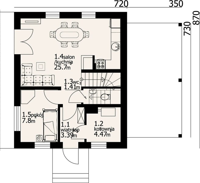
Dom na sprzedaż w stanie surowym zamkniętym w miejscowości Milejewo przy ul. Stawowej. Dom o pow. użytkowej 89 m2,parterowy z użytkowym poddaszem /Gładyszowo/ ze zmienionym układem ścian, okien, podniesiona ścianka kolankowa. Prąd przy działce, woda w drodze.
ZAPRASZAMY DO OGLĄDANIA
Kredyt na zakup nieruchomości załatwisz u specjalisty kredytowego w biurze.
Parter: przedpokój, pokój z aneksem kuchennym, sypialnia, kotłownia, WC.
Piętro: przedpokój, 3 pokoje, łazienka z WC.
Dom pokryty dachówką ceramiczną, okna trzyszybowe, przewidziano wentylację grawitacyjną, piec na pellet, szambo ekologiczne.
Dojazd do nieruchomości drogą utwardzoną, wjazd z drogi głównej asfaltowej.
W miejscowości są dwa sklepy, szkoła, przedszkole, ośrodek zdrowia, komunikacja miejska, kościół, bank, do Elbląga 10 km.
Ogłoszenia premium
Domy mieszkalneSprzedam za 2 200 000 zł
Ogł. nr 902151
z 26 stycznia
Dom wśród sosen – enklawa ciszy i harmonii, ul. Wileńska, Elbląg
Lokale i budynki użytkoweSprzedam za 265 000 zł
Ogł. nr 902693
z 29 stycznia
SPRZEDAM lokal użytkowy w Elblągu 115m2
ZatrudnięProdukcja
Ogł. nr 902457
z 27 stycznia
Firma Schmid Polska Sp. z o. o. jest największym zakładem należącym do Grupy Schmid – szwajcarskiego producenta systemów energetycznego wykorzystania biomasy drzewnej. Od 1936 roku Schmid wspiera rozwój nowoczesnej energetyki dzięki innowacyjnym rozwiązaniom i zrównoważonym usługom.
Obecnie poszukujemy w Elblągu zaangażowanej, niezawodnej i dynamicznej osoby, która dołączy do naszego zespołu na stanowisko:
Specjalista/Specjalistka ds. zakupów
Lokale mieszkalneSprzedam za 559 000 zł
Ogł. nr 902766
z 29 stycznia
:: Biuro nieruchomości ARKADIA ::
Mieszkanie o wysokim standardzie ul. Częstochowska (Korona II)
Piętro: parter
Liczba pokoi: 3
Powierzchnia: 53,98 m²
Taras
Winda
Miejsce postojowe
Lokale mieszkalneSprzedam za 448 000 zł
Ogł. nr 902961
z 30 stycznia
Mieszkanie 3 pokojowe po generalnym remoncie.
Kontakt mailowy: ogloszenia@portel.pl
























