Domy mieszkalneSprzedam za 385 000 zł
Ogł. nr 900786
z 16 stycznia
BIURO NIERUCHOMOŚCI
SZULC& SZULC
Powierzchnia działki: 700 m2
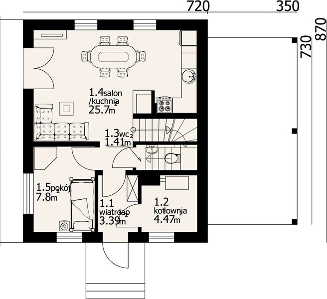
Dom na sprzedaż w stanie surowym zamkniętym w miejscowości Milejewo przy ul. Stawowej. Dom o pow. użytkowej 89 m2,parterowy z użytkowym poddaszem /Gładyszowo/ ze zmienionym układem ścian, okien, podniesiona ścianka kolankowa. Prąd przy działce, woda w drodze.
ZAPRASZAMY DO OGLĄDANIA
Kredyt na zakup nieruchomości załatwisz u specjalisty kredytowego w biurze.
Parter: przedpokój, pokój z aneksem kuchennym, sypialnia, kotłownia, WC.
Piętro: przedpokój, 3 pokoje, łazienka z WC.
Dom pokryty dachówką ceramiczną, okna trzyszybowe, przewidziano wentylację grawitacyjną, piec na pellet, szambo ekologiczne.
Dojazd do nieruchomości drogą utwardzoną, wjazd z drogi głównej asfaltowej.
W miejscowości są dwa sklepy, szkoła, przedszkole, ośrodek zdrowia, komunikacja miejska, kościół, bank, do Elbląga 10 km.
Ogłoszenia premium
ZatrudnięMarketing
Ogł. nr 901650
z 22 stycznia
🌟 Dołącz do zespołu marketingu naszej uczelni! 🌟
Akademia Medycznych i Społecznych Nauk Stosowanych poszukuje osoby do Działu Promocji. Jeśli masz głowę pełną pomysłów, lubisz pracę z ludźmi, a social media to Twoje naturalne środowisko – czekamy właśnie na Ciebie!
Zatrudnię
Ogł. nr 901836
z 23 stycznia
Elbląskie Przedsiębiorstwo Wodociągów i Kanalizacji Spółka z ograniczoną odpowiedzialnością
zatrudni osobę na stanowiskoZastępcy Dyrektora ds. Inwestycji i Postępu Technicznego
(w obszarze gospodarki wodno-ściekowej)
Remont.-budowlaneWykonam usługę
Ogł. nr 900919
z 17 stycznia
ZŁOTA RĄCZKA NAPRAWI WSZYSTKO! MAM UPRAWNIENIA ELEKTRYCZNE, GAZOWE I CIEPŁOWNICZE. JEŚLI MASZ PROBLEM Z HYDRAULIKĄ, ELEKTRYKĄ, COŚ TRZEBA ZESPAWAĆ, ZAMONTOWAĆ KABINĘ PRYSZNICOWĄ LUB WANNĘ. A MOŻE POWIESIĆ ŻYRANDOL, LUSTRO LUB TELEWIZOR, WYMIENIĆ WĘŻYK CZY KRAN, MOŻE ZEPSUŁA SIĘ SPŁUCZKA PODTYNKOWA? PODŁĄCZĘ KUCHENKĘ I PŁYTĘ GAZOWĄ, PRALKĘ I ZMYWARKĘ. PRZEPYCHAM RURY KANALIZACYJNE. WYSTAWIAM FAKTURY. HYDRAULIKA, ,ELEKTRYKA, GAZ, ŚLUSARSTWO I SPAWANIE
Sam. osoboweSprzedam za 15 500 zł
Ogł. nr 901453
z 21 stycznia
Sprzedam pięknego Leona 2 LiFT
ZatrudnięGastronomia
Ogł. nr 901708
z 22 stycznia
Restauracja Cztery Pory Roku zatrudni kelnerkę
Kontakt mailowy: ogloszenia@portel.pl























