Domy mieszkalneSprzedam za 385 000 zł
Ogł. nr 900985
z 18 stycznia
BIURO NIERUCHOMOŚCI
SZULC& SZULC
Powierzchnia działki: 700 m2
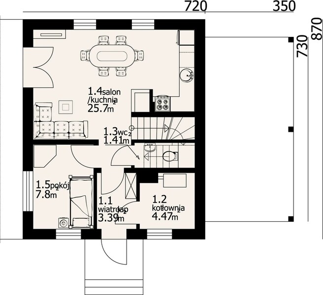
Dom na sprzedaż w stanie surowym zamkniętym w miejscowości Milejewo przy ul. Stawowej. Dom o pow. użytkowej 89 m2,parterowy z użytkowym poddaszem /Gładyszowo/ ze zmienionym układem ścian, okien, podniesiona ścianka kolankowa. Prąd przy działce, woda w drodze.
ZAPRASZAMY DO OGLĄDANIA
Kredyt na zakup nieruchomości załatwisz u specjalisty kredytowego w biurze.
Parter: przedpokój, pokój z aneksem kuchennym, sypialnia, kotłownia, WC.
Piętro: przedpokój, 3 pokoje, łazienka z WC.
Dom pokryty dachówką ceramiczną, okna trzyszybowe, przewidziano wentylację grawitacyjną, piec na pellet, szambo ekologiczne.
Dojazd do nieruchomości drogą utwardzoną, wjazd z drogi głównej asfaltowej.
W miejscowości są dwa sklepy, szkoła, przedszkole, ośrodek zdrowia, komunikacja miejska, kościół, bank, do Elbląga 10 km.
Ogłoszenia premium
ZatrudnięProdukcja
Ogł. nr 901155
z 19 stycznia
D. R.E. Sp. z o. o. z siedzibą w Gronowie Górnym przy ulicy Nefrytowej 4 poszukuje osób do wykonywania napraw elektrycznych w nowo powstającym zakładzie w Pasłęku.
Lokale mieszkalneKupię
Ogł. nr 901848
z 23 stycznia
KUPIĘ NIERUCHOMOŚĆ ZA GOTÓWKĘ
ZADŁUŻONĄ, DO REMONTU LUB SPRAWA SPADKOWA
WSZYSTKIE FORMALNOŚCI ZAŁATWIAM
SZYBKO, POUFNIE I PROFESJONALNIE
ZAPRASZAM DO KONTAKTU
Lokale mieszkalneSprzedam za 509 000 zł
Ogł. nr 901567
z 21 stycznia
🌳 Mieszkanie z ogrodem w nowym budownictwie NA STOKU + miejsce postojowe!
Mieszkanie na parterze (ponad 50 m2) – brak barier architektonicznych, własny taras i ogród (25 m2) oraz szerokie miejsce postojowe dla większych pojazdów lub osób niepełnosprawnych
Idealna propozycja dla rodzin z dziećmi, osób niepełnosprawnych i starszych oraz inwestorów – nowoczesny, monitorowany apartamentowiec z widokiem na minipark, pełne wyposażenie, niski czynsz i doskonała lokalizacja przy parku handlowym!
Sam. osoboweWykonam usługę
Ogł. nr 901797
z 23 stycznia
SERWIS SAMOCHODOWY PERFECT-CAR AUTO NAPRAWA FABRYCZNA16 KRUPA KRZYSZTOF
-Klimatyzacja Nabijanie Odgrzybianie Serwis Olejowy Ozonowanie Nowy Czynnik 1234yf R134a
-Auto Naprawa Hamulce Zawieszenia Serwisy Olejowe Bieżące Naprawy Rozrządy
-Wulkanizacja Wymiana Opon Wywarzanie Naprawy Opon
-Konserwacja Podwozia Przygotowywanie Aut Do Przeglądów Technicznych
-Skup Samochodów Również Możesz Sprzedać Swoje Aut
WSZYSTKIE NAPRAWY STARAMY SIĘ ROBIĆ NA BIERZĄCO BEZ KOLEJEK
Do Każdej Wymiany Kół Płyn Zimowy Do Spryskiwaczy GRATIS
GarażeWynajmę komuś za 249 zł
Ogł. nr 901476
z 21 stycznia
🏪 Wynajmę pomieszczenia magazynowe typu self storage –
Przechowamy Twoje rzeczy prywatne i firmowe, bezpiecznie, sucho, z całodobowym dostępem!
🕒Osoby, które zainteresowało to ogłoszenie obejrzały również:
Domy mieszkalneSprzedam za 780 000 zł
Ogł. nr 899277
z 19 stycznia
LEVEL NIERUCHOMOŚCI
Dom w środku miasta
ul. robotnicza
NIERUCHOMOŚCI NA POZIOMIE
Domy mieszkalneSprzedam za 879 000 zł
Ogł. nr 899256
z 7 stycznia
ELBLĄG, UL. KRAKUSA
DOM (PÓŁ BLIŹNIAKA)
POWIERZCHNIA UŻYTKOWA 220,6 M2
108,4 M2 - CZĘŚĆ MIESZKALNA, 4 POKOJE
112,2 M2 - CZĘŚĆ BIUROWA - DOCHÓD PASYWNY 5K MIESIĘCZNIE
MEDIA Z MIASTA
★ HAUSLAND REAL ESTATE★
MISJA: WIĘCEJ NIŻ UDANA TANSAKCJA
Domy mieszkalneSprzedam za 719 000 zł Ogł. nr 897352
* * * ABC NIERUCHOMOŚCI * * *
NOWA CENA! DOM WOLNOSTOJĄCY NIEDALEKO ELBLĄGA
- powierzchnia 72,49 m2, działki 604 m2
- gotowy do zamieszkania
- położony w cichej i malowniczej okolicy
- Kamionek Wielki, gm. Tolkmicko
Więcej na stronie: https://www.abcn.pl/pl/oferta/AG02800/
Kontakt mailowy: ogloszenia@portel.pl



























