Domy mieszkalneSprzedam za 949 000 zł
Ogł. nr 909681
z 13 marca
GALERIA NIERUCHOMOŚCI
Z pasji i miłości do nieruchomości
Na sprzedaż: Mieszkanie i firma w jednym
Żurawiec k. Elbląga
gnieruchomosci. pl
Dom z potencjałem! Mieszkalno-usługowy, stan surowy zamknięty Żurawiec k. Elbląga
Na sprzedaż wyjątkowa nieruchomość z ogromnym potencjałem inwestycyjnym, położona w spokojnej i zielonej miejscowości Żurawiec (gm. Markusy) zaledwie 10 minut od Elbląga. To idealna propozycja dla osób, które szukają miejsca, gdzie można połączyć życie prywatne z prowadzeniem działalności lub stworzyć funkcjonalny obiekt pod wynajem, mały biznes, magazyn czy gabinet.
Budynek:
Dom w stanie surowym zamkniętym wybudowany z solidnych materiałów, z wykonanym dachem, stolarką okienną i drzwiami zewnętrznymi.
Budynek o funkcji mieszkalno-usługowej, dający szerokie możliwości aranżacyjne i adaptacyjne.
Parametry techniczne:
- powierzchnia użytkowa budynku: 189,63 m²
- część mieszkalna: 88,19 m²
- część usługowa: 101,90 m²
- kubatura: 568,90 m³
- działka: 1322 m²
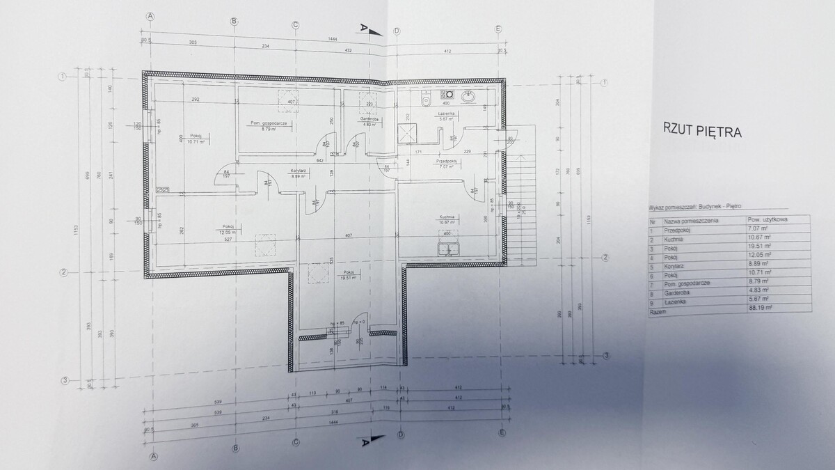
UKŁAD POMIESZCZEŃ
PARTER- strefa usługowa (101,44 m²):
- Sala produkcyjna 54,53 m²
- Biuro 4,00 m²
- Szatnia 7,34 m²
- WC 2,85 m² Myjka 3,08 m²
- Wywarka chleba 4,73 m²
- Piec 2,32 m²
- Kotłownia 5,18 m²
- Garownia 5,80 m²
- Magazyn 11,61 m²
PIĘTRO- część mieszkalna (88,19 m²):
- Przedpokój 7,07 m²
- Kuchnia 10,67 m²
- Pokój 19,51 m²
- Pokój 12,05 m²
- Korytarz 8,89 m²
- Pokój 10,71 m²
- Pomieszczenie gospodarcze 8,79 m²
- Garderoba 4,83 m²
- Łazienka 5,67 m²
Atuty nieruchomości:
- dwa niezależne wejścia możliwość oddzielenia strefy mieszkalnej od usługowej
- możliwość adaptacji na dwa niezależne lokale
- solidny stan surowy zamknięty
- wykonane mury, dach, okna, drzwi zewnętrzne
- duża działka z miejscem na ogród, parking lub przestrzeń dla firmy
- spokojna lokalizacja, a jednocześnie szybki dojazd do Elbląga (ok.10 min)
- idealny pod mały biznes: magazyn, gabinet, biuro, warsztat, salon usługowy
Dodatkowo na działce jest postawiony garaż o powierzchni 50m2.
Lokalizacja:
Żurawiec to cicha i malownicza miejscowość w gminie Markusy idealna dla osób ceniących ciszę, przestrzeń i kontakt z naturą. Wokół znajduje się luźna zabudowa jednorodzinna, pola i tereny zielone, a dogodny dojazd do drogi krajowej zapewnia komfortowe połączenie z Elblągiem i okolicznymi miejscowościami.
Dodatkowe informacje:
- pełna własność,
- uregulowany stan prawny
- nieruchomość dostępna od zaraz
- cena do negocjacji
- istnieje możliwość częściowego rozliczenia za ziemię rolną
Podsumowanie:
Ten dom to doskonała propozycja dla inwestora, przedsiębiorcy lub rodziny, która szuka miejsca z potencjałem na połączenie życia i pracy w jednym miejscu. Tutaj stworzysz przestrzeń dopasowaną do siebie od przytulnego domu po nowoczesną siedzibę firmy.
Chcesz spełnić swoje marzenie o zakupie nieruchomości, ale potrzebujesz wsparcia i pomocy?
Gwarantujemy rzetelne doradztwo kredytowe. Z nami uzyskasz korzystny kredyt. Wyjaśnimy wszystkie wątpliwości oraz pomożemy przy załatwianiu niezbędnych formalności. Pomoc jest całkowicie bezpłatna, a dzięki niej możesz zaoszczędzić sporo czasu i pieniędzy.
Zapraszam również do naszego biura:
Galeria Nieruchomości
ul.3 Maja 5A
82-300 Elblągu
gnieruchomosci. pl
Ogłoszenia premium
ZatrudnięUsługi
Ogł. nr 909711
z 13 marca
🔧 Dołącz do ekspertów – zostań Mechanikiem Utrzymania Ruchu (K/M)
Miejsce pracy: Elbląg, ul. Stoczniowa 2
Lokale mieszkalneSprzedam za 429 000 zł
Ogł. nr 908795
z 9 marca
👑🏠 KINGDOM 🏠👑
NIERUCHOMOŚCI BLISKO CIEBIE
KOMFORTOWE 3-POKOJOWE MIESZKANIE PO GENERALNYM REMONCIE
WSZYSTKIE MEDIA Z MIASTA
POŁOŻONE W BARDZO DOBREJ LOKALIZACJI
ULICA KRÓLEWIECKA, ELBLĄG
Lokale mieszkalneWykonam usługę
Ogł. nr 909230
z 10 marca
WYWÓZ ŚMIECI- UTYLIZACJA MEBLI, GRUZU, SPRZĘTU ITP. WYWÓZ NA WYSYPISKO
Utylizacja
Nasi pracownicy spakują, przeniosą i wywiozą zbędne przedmioty. Możliwy demontaż, wyburzenie. Zapewniamy własne worki oraz kartony. Na życzenie klienta wystawiamy faktury VAT. Zajmujemy się również transportem i przeprowadzkami.
Wywozimy:
- Meble, wersalki, tapczany itp
- Odpady budowlane regipsy, płytki
- Gruz luzem oraz w workach
- Sprzęt RTV/AGD telewizory, pralki, lodówki itp.
- Złom
- Wszystkie inne odpady i śmieci
Domy mieszkalneSprzedam za 2 200 000 zł
Ogł. nr 909445
z 12 marca
Dom wśród sosen – enklawa ciszy i harmonii, ul. Wileńska, Elbląg
Sam. osoboweWykonam usługę za 1 000 zł
Ogł. nr 909290
z 11 marca
Szukasz taniego auta? A może chcesz szybko sprzedać swój obecny samochód? Zapraszamy do - Auto Giełdy Elbląg !
Kontakt mailowy: ogloszenia@portel.pl














