UWAGA!

----
Ok
Jeśli chcesz nawiązać kontakt z ogłoszeniodawcą, wypełnij formularz i kliknij na WYŚLIJ
Twój adres e-mail
Treść zapytania
Załączniki
Dodaj załącznik
 
Wyślij do mnie kopię z potwierdzeniem
 
Oferty przeznaczone wyłącznie dla osób dorosłych. Jeśli nie masz 18 lat, to idź lepiej odrobić lekcje albo pograć w piłkę.

Lokale i budynki użytkoweSprzedam za 300 000 zł Ogł. nr 886694
z 17 października

FUTURE NIERUCHOMOŚCI

Sprzedam komercyjny - Elbląg ul.   Garbary   

LOKAL GASTRONOMICZNY Z PEŁNYM WYPOSAŻENIEM NA ELBLĄSKIEJ STARÓWCE!!!

CENA: 300 000 zł brutto

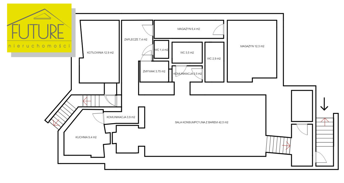
POW. UŻYTKOWA :90,5 m2


Niepowtarzalna okazja zakupu gotowego biznesu.
Nabywca kupuje restaurację wraz z całym wyposażeniem i od pierwszych dni może zarabiać.
Restauracja położona na Elbląskiej starówce.
W cenie pozostaje PEŁNE wyposażenie restauracji, baru, kuchni. Poczynając od stołów i krzeseł, po sprzęt AGD i RTV.
Lokal z bezpośrednim wejściem z chodnika, położony w przyziemiu.
Lokal o charakterystycznym, klimatycznym wnętrzu, dzięki odkrytej cegle oraz sklepieniu łukowym.

W skład lokalu wchodzą:
-Sala konsumencka na trzydzieści osób
-WC damskie, męskie oraz dla personelu.
-Serce każdej restauracji kuchnia wyposażona w sprzęt AGD potrzebnych do funkcjonowania każdego lokalu.
-Pomieszczenia gospodarcze i zaplecze.
-Zmywalnia

Na sali jest 6 stołów na trzydzieści osób.  
Na elewacji budynku znajduje się miejsce na szyld.
Wymieniona elektryka.
Lokal jest klimatyzowany.
Restauracja posiada swój komin wentylacyjny, który jest wyprowadzony powyżej wysokości kamienicy.
Czynsz do wspólnoty 1000 zł miesięcznie.  
Ciepła woda oraz ogrzewanie z pieca gazowego, zlokalizowanego w kotłowni budynku.


Przy zakupie nieruchomości należy uwzględnić koszty notarialne oraz wynagrodzenie dla biura nieruchomości 1,5%

ZAPRASZAMY NA PREZENTACJĘ!

Oferujemy skuteczną pomoc w otrzymaniu kredytu.
Myślisz o sprzedaży swojej nieruchomości ?
Zadzwoń nasze biuro pomoże Ci na każdym etapie transakcyjnym sprzedaży i zakupu.


Przedstawiona oferta ma charakter informacyjny, nie stanowi oferty handlowej w rozumieniu art.66 § 1 Kodeksu Cywilnego.

Opis i objęty jest ochroną praw autorskich, osobistych i majątkowych stanowiąc własność przedsiębiorstwa FUTURE w świetle prawa autorskiego ustawa z 4 lutego 1994 r. o prawie autorskim i prawach pokrewnych (Dz. U.1994,nr 24 poz.83 z późn. zm. ) Kopiowanie i rozpowszechnianie zabronione

Dane nieruchomości
Powierzchnia:
91 m²
Cena:
300 000 zł   (3 297 zł/m²)
Lokalizacja:
Elbląg
Kontakt

Adres:

82-300 Elbląg, Aleja Jana Pawła II 1 lok. A

Tel.:

55 XXX XX XX (pokaż)

Kom.:

50X XXX XXX (pokaż)

WWW:

www.futurenieruchomosci.pl
Zobacz średnie ceny ofertowe sprzedaży lokali użytkowych w Elblągu

Ogłoszenia premium

Ogłoszenia Premium zapewniają nawet do kilku razy więcej odpowiedzi.
Premium
Elbląg FUTURE NIERUCHOMOŚCISPRZEDA DOM  - KRYNICA MORSKA     OFERTA INWESTYCYJNA DOM TYPU BLIŹNIAK W

Domy mieszkalneSprzedam za 890 000 zł Ogł. nr 886696
z 17 października

FUTURE NIERUCHOMOŚCI

SPRZEDA DOM  - KRYNICA MORSKA    

OFERTA INWESTYCYJNA

DOM TYPU BLIŹNIAK W KRYNICY MORSKIEJ 

CENA: 890 000 zł

POWIERZCHNIA CAŁKOWITA DOMU: 112 m2 

POWIERZCHNIA DZIAŁKI: 861 m2

Premium
Elbląg Firma DROPLEAD SP. Z O. O.  poszukuje  osoby na stanowisko:  Pakowanie  paczekZakres

ZatrudnięObsługa magazynu Ogł. nr 886332
z 15 października

Firma DROPLEAD SP. Z O. O.  poszukuje  osoby na stanowisko:  Pakowanie  paczek

Zakres obowiązków:

  • Pakowanie i rozpakowanie lekkiego towaru
  • Skanowanie przesyłek
  • Okres zatrudnienia: listopad-grudzień

Premium
Elbląg Sprzedam Renault Koleos r.2012 automat 4× 4

Sam. osoboweSprzedam za 20 500 zł Ogł. nr 886238
z 14 października

Sprzedam Renault Koleos r.2012 automat 4× 4

Premium

ZatrudnięBudownictwo Ogł. nr 885777
z 12 października

Zatrudnimy operatora koparki

Premium
Elbląg 🔥  USŁUGI KOMINIARSKO-GAZOWNICZEOferta pracy:  na stanowisku pomocnik kominiarzaumowa o

Zatrudnię Ogł. nr 886741
z 17 października

🔥  USŁUGI KOMINIARSKO-GAZOWNICZE

Oferta pracy:  na stanowisku pomocnik kominiarza

  • umowa o pracę
  • praca na wysokości powyżej 3m
  • praca na terenie Elbląga
Reklama
Redakcja nie ponosi odpowiedzialności za treść i formę ogłoszeń
Infolinia działu ogłoszeń: 55 235 39 76 pon. - piątek, godz. 8.30 - 16.30
Kontakt mailowy: ogloszenia@portel.pl