Lokale i budynki użytkoweWynajmę komuś za 1 200 zł
Ogł. nr 913779
z 7 kwietnia
Lokale usługowe w Starówka K15,Elbląg – Stare Miasto
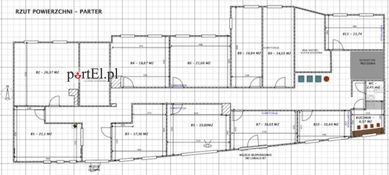
Do wynajęcia lokale usługowe o powierzchni od 10 m2 do 26 m2 w Starówka K15 w Elblągu przy ul. Kowalskiej 15 – 18.
Najemcy mogą bezpłatnie korzystać z:
– trzech sal spotkań 3,5,8 osobowe,
– najszybszego internetu – światłowód 1 GB,
– parkingu ze szlabanem,
– ochrony wynajmowanych pomieszczeń – monitoring firmy ochroniarskiej oraz monitoring wizyjny,
– aneksu kuchennego,
Do wynajęcia 11 wydzielonych pomieszczeń usługowych dla firmy z każdej branży – okazja na integrację, wymianę informacji, doświadczeń oraz pozyskiwanie nowych kontaktów.
Starówka K15 zlokalizowana jest w prestiżowej i atrakcyjnej lokalizacji na Starym Mieście w Elblągu przy ul. Kowalskiej 15 – 18
Starówka K15 to:
– 310 m2 powierzchni użytkowej w tym ponad 110 m2 do wspólnego korzystania,
– 11 wydzielonych pomieszczeń usługowych o powierzchni od 10 m2 do 26 m2 – możliwość dostosowania wielkości powierzchni biurowych do oczekiwań Najemcy,
– 3 sale spotkań – do bezpłatnego korzystania tylko przez Najemców,
– możliwość rejestracji wirtualnego biura,
– dostęp do bezpłatnego parkingu ze szlabanem,
– ok. 50 m do ogólnodostępnego parkingu (65 miejsc postojowych) oraz wzdłuż lokalu,
– klimatyzacja i/lub wentylacja mechaniczna w pomieszczeniach biurowych,
– wysoki standard wykończenia,
– gniazdka LAN w każdym pomieszczeniu, WIFI w całym obiekcie + dostęp do światłowodu o prędkości do 1 Gb/s,
– bezpieczeństwo – szyby antywłamaniowe, monitoring firmy ochroniarskiej, monitoring wizyjny,
– spokojne i przyjazne środowisko pracy,
– czystość – regularne sprzątanie powierzchni wspólnych,
– prestiżowa i doskonała lokalizacja – przy głównym ciągu komunikacyjnym Starego Miasta,
– doskonałe połączenie komunikacyjne (autobusy, tramwaje),
W bezpośrednim sąsiedztwie Ratusz Staromiejski, Poczta Polska, hotele oraz liczne restauracje, kawiarnie, cukiernie, sklepy spożywcze.
Lokal B1 – wynajęte,
Lokal B2 – wynajęte,
Lokal B3 – wynajęte,
Lokal B4 – wynajęte,
Lokal B5 – wynajęte,
Lokal B6 – wynajęte,
Lokal B7 – wynajęte,
Lokal B8 – pow. 16,84 m2 – 1 200,00 zł
Lokal B9 – wynajęte,
Lokal B10 – wynajęte,
Lokal B11 – wynajęte,
Do kosztów najmu należy doliczyć opłatę administracyjną w wysokości 28,49 zł/m2 liczoną od wynajmowanej powierzchni biurowej oraz opłatę za zużycie energii elektrycznej.
Opłata administracyjna jest w formie ryczałtu i nie podlega dodatkowym rozliczeniom.
Nie doliczamy kosztów za części wspólne.
W skład opłaty administracyjnej wchodzi:
– centralne ogrzewanie budynku z sieci miejskiej,
– wywóz nieczystości biurowych,
– regularne sprzątanie powierzchni wspólnych,
Oferujemy również dla swoich Klientów, dostęp do wysokiej jakości usług dodatkowo płatnych w zakresie:
– obsługi finansowo/księgowej/kadrowej na preferencyjnych warunkach,
– zdalnej obsługi prawnej,
– realizacji projektów graficznych, tworzenia stron www, tworzenia i zarządzania kampaniami marketingowymi online w tym na portalach społecznościowych typu Facebook, Instagram,
– wsparcia IT w zakresie instalacji i konfiguracji nowego sprzętu oraz zdalnej pomoc informatycznej.
Zapraszamy do polubienia naszego profilu na FB
Ogłoszenia premium
Lokale mieszkalneSprzedam za 219 000 zł
Ogł. nr 917484
z 28 kwietnia
👑🏠 KINGDOM 🏠👑
NIERUCHOMOŚCI BLISKO CIEBIE
USTAWNA KAWALERKA POŁOŻONA NA DRUGIM PIĘTRZE
W ŚCISŁYM CENTRUM I W SĄSIEDZTWIE STAREGO MIASTA
ULICA HETMAŃSKA, ELBLĄG
Praca - zatrudnięEdukacja
Ogł. nr 914776
z 3 maja
Zatrudnię opiekunkę do żłobka
Praca - zatrudnięProdukcja
Ogł. nr 913814
z 27 kwietnia
D. R.E. Sp. z o. o. poszukuje osób do pracy na produkcji w Elblągu .
Sam. osoboweWykonam usługę za 150 zł
Ogł. nr 917353
z 28 kwietnia
AUTO SPA ZAPRASZA
ZABEZPIECZ SWÓJ LAKIER - CERAMIKA
- Kompleksowe przygotowanie samochodu do sprzedaży dla klientów indywidualnych, komisów
Obsługa samochodów flotowych, osobowych, dostawczych w zakresie utrzymania bieżącego porządku
Powłoki kwarcowo – ceramiczne
Korekta lakieru, korekta reflektorów
Pranie tapicerki samochodowej
Czyszczenie tapicerki skórzanej
Polerowanie lamp
Zabezpieczenie lakieru woskiem / maszynowo
Zapraszamy do kontaktu i współpracy
Czynne: pn- pt 8.00- 16.00 Sobota 8.00- 12.00
Elbląg Piławska 2
Lokale mieszkalneSprzedam za 735 000 zł
Ogł. nr 918150
z 4 maja
GROVEST NIERUCHOMOŚCI
PREZENTUJE:
Dwupoziomowe klimatyzowane 4-pokojowe mieszkanie 77,3 m²
Lokalizacja: Elbląg, ul. Kossaka 11
735 000 zł
Osoby, które zainteresowało to ogłoszenie obejrzały również:
Lokale i budynki użytkoweWynajmę komuś za 25 000 zł
Ogł. nr 913855
z 7 kwietnia
WYNAJMĘ NOWĄ HALĘ MAGAZYNOWĄ W CENTRUM ELBLĄGA
Lokale i budynki użytkoweSprzedam za 245 000 zł
Ogł. nr 917795
z 30 kwietnia
SPRZEDAM lokal użytkowy w Elblągu 115m2
Kontakt mailowy: ogloszenia@portel.pl















