Lokale i budynki użytkoweSprzedam za 2 800 000 zł Ogł. nr 861615
PÓŁNOC NIERUCHOMOŚCI
Sprzedam lokal użytkowy - Orneta.
To propozycja dla inwestora, przedsiębiorcy lub firmy szukającej obiektu z gotową infrastrukturą i szerokim potencjałem adaptacyjnym.Najważniejsze atuty nieruchomości: duża powierzchnia użytkowa pozwalająca na różne funkcje działalności,
część mieszkalna – możliwość zamieszkania, utworzenia hotelu pracowniczego lub dodatkowego dochodu z najmu.
dobra lokalizacja w mieście – wygodny dojazd i dostęp do infrastruktury,
budynek funkcjonujący dotychczas jako zakład produkcyjny,
działka zapewniająca zaplecze techniczne i logistyczne
Nieruchomość daje wiele scenariuszy wykorzystania, m.in.:produkcja, magazyn lub zaplecze logistyczne,lokale usługowe lub handlowehostel pracowniczy lub mieszkania na wynajemsiedziba firmy z zapleczem mieszkalnymadaptacja pod funkcje komercyjno-mieszkaniowe.Clubyrestauracjedom spokojnej starości
Układ budynku oraz istniejąca infrastruktura sprzyjają etapowej adaptacji i dywersyfikacji źródeł przychodu.
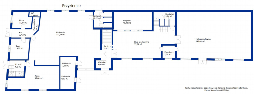
Obecnie w budynku wydzielone są dwa niezależne mieszkania: Mieszkanie 3-pokojowe o powierzchni 53,48 m2 Mieszkanie 3-pokojowe o powierzchni 64,30 m2 oraz część produkcyjna z zapleczem socjalnym i biurowym o łącznej powierzchni użytkowej 918,54 m2.
Całość położona jest na dużej działce o powierzchni 1 544 m2, co daje możliwość dalszej rozbudowy, adaptacji lub prowadzenia innych rodzajów działalności gospodarczej.
Dla kogo ta nieruchomość?
dla inwestora prywatnego szukającego stabilnego zwrotu,
przedsiębiorcy produkcyjno/logistycznego,
operatora najmu pracowniczego,
inwestora z planem adaptacji komercyjno-mieszkaniowej.
Masz inny pomysł na ten obiekt?
Świetnie — porozmawiajmy, policzmy i sprawdźmy, jak przekuć Twoją wizję w realny zysk.
Kontakt:
Jeśli szukasz nieruchomości, która może pracować na siebie na kilka sposobów – zapraszam do kontaktu i prezentacji obiektu.
Agnieszka Zgórzyńska
Nr tel. 500 558 881
Północ Nieruchomości Elbląg
Niniejsze ogłoszenie nie stanowi oferty w rozumieniu Kodeksu Cywilnego, lecz ma charakter informacyjny.
Przedstawione wizualizacje i grafiki mają charakter wyłącznie poglądowy i stanowią wyłącznie materiał pomocniczy, ułatwiający zorientowanie się w ogólnym wyglądzie oferowanej nieruchomości.
Niniejsze ogłoszenie wraz z jego elementami jest własnością Północ Nieruchomości Sp z o.o. lub podmiotu współpracującego. Wszelkie prawa zastrzeżone. Kopiowanie, rozpowszechnianie oraz korzystanie z niniejszych materiałów w jakikolwiek inny sposób wykraczający poza dozwolony użytek określony przepisami ustawy z 4 lutego 1994 r. o prawie autorskim i prawach pokrewnych (Dz. U. 1994, nr 24 poz. 83 z późn. zm.) bez pisemnej zgody Północ Nieruchomości Sp z o.o. lub podmiotów współpracujących jest zabronione i może stanowić podstawę odpowiedzialności cywilnej oraz karnej.
Niniejsze materiały stanowią tajemnicę przedsiębiorstwa PÓŁNOC NIERUCHOMOŚCI Sp. z o.o. w rozumieniu ustawy z dnia 16 kwietnia 1993 r. o zwalczaniu nieuczciwej konkurencji (Dz. U. z 2003 r., Nr 153, poz. 1503 z późn. zm.).

Ogłoszenia premium
Remont.-budowlaneWykonam usługę
Ogł. nr 911171
z 21 marca
ZŁOTA RĄCZKA NAPRAWI WSZYSTKO! MAM UPRAWNIENIA ELEKTRYCZNE, GAZOWE I CIEPŁOWNICZE. JEŚLI MASZ PROBLEM Z HYDRAULIKĄ, ELEKTRYKĄ, COŚ TRZEBA ZESPAWAĆ, ZAMONTOWAĆ KABINĘ PRYSZNICOWĄ LUB WANNĘ. A MOŻE POWIESIĆ ŻYRANDOL, LUSTRO LUB TELEWIZOR, WYMIENIĆ WĘŻYK CZY KRAN, MOŻE ZEPSUŁA SIĘ SPŁUCZKA PODTYNKOWA? PODŁĄCZĘ KUCHENKĘ I PŁYTĘ GAZOWĄ, PRALKĘ I ZMYWARKĘ. PRZEPYCHAM RURY KANALIZACYJNE. WYSTAWIAM FAKTURY. HYDRAULIKA, ,ELEKTRYKA, GAZ, ŚLUSARSTWO I SPAWANIE
Lokale mieszkalneWynajmę komuś za 3 200 zł
Ogł. nr 910863
z 25 marca
Nowoczesne 2-pokojowe mieszkanie na wynajem | Elbląg | balkon | nowe budownictwo
Sam. osoboweWykonam usługę za 150 zł
Ogł. nr 910846
z 26 marca
AUTO SPA ZAPRASZA
ZABEZPIECZ SWÓJ LAKIER - CERAMIKA
- Kompleksowe przygotowanie samochodu do sprzedaży dla klientów indywidualnych, komisów
Obsługa samochodów flotowych, osobowych, dostawczych w zakresie utrzymania bieżącego porządku
Powłoki kwarcowo – ceramiczne
Korekta lakieru, korekta reflektorów
Pranie tapicerki samochodowej
Czyszczenie tapicerki skórzanej
Polerowanie lamp
Zabezpieczenie lakieru woskiem / maszynowo
Zapraszamy do kontaktu i współpracy
Czynne: pn- pt 8.00- 16.00 Sobota 8.00- 12.00
Elbląg Piławska 2
ZatrudnięHotelarstwo
Ogł. nr 910886
z 20 marca
Zatrudnimy osoby do pracy na recepcji Ośrodków Wypoczynkowych na Mierzei Wiślanej
Lokale mieszkalneSprzedam za 368 000 zł
Ogł. nr 910861
z 20 marca
👑🏠 KINGDOM 🏠👑
NIERUCHOMOŚCI BLISKO CIEBIE
PRZESTRONNE 3-POKOJOWE MIESZKANIE
POŁOŻONE NA PARTERZE
Z DUŻYM POTENCJAŁEM ARANŻACYJNYM
BARDZO NISKI CZYNSZ
ULICA GRUNWALDZKA, ELBLĄG
Kontakt mailowy: ogloszenia@portel.pl














