Lokale mieszkalneSprzedam za 438 000 zł
Ogł. nr 910521
z 18 marca
🏡 4 pokoje w Centrum Elbląga + prywatny parking za szlabanem! 🅿️
ul. Teatralna 28,parter
Wyjątkowa oferta – przestronne mieszkanie w samym sercu Elbląga! 🌟
Szukasz komfortowego mieszkania dla rodziny, seniorów lub pod inwestycję? To idealna propozycja dla Ciebie!
- Przestrzeń dla rodziny: 4 ustawne pokoje do własnej aranżacji – stwórz wygodną sypialnię, pokój dziecięcy, gabinet lub garderobę!
- Lokalizacja – wszędzie blisko: Teatr im. Aleksandra Sewruka, centrum handlowe, szkoły, przedszkola oraz przystanki tramwajowe i autobusowe w zasięgu kilku kroków.
- Prywatny parking: Wjazd pod blok zabezpieczony szlabanem na pilota – zapomnij o problemach z parkowaniem w centrum!
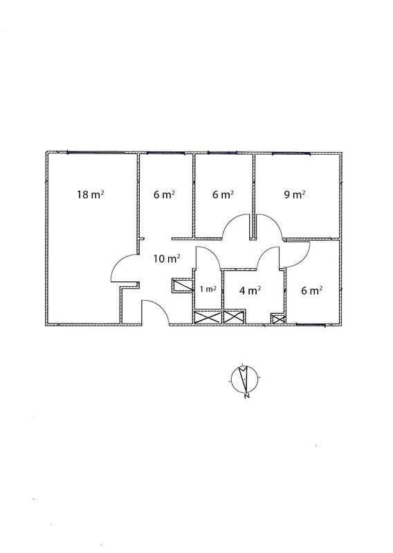
Rozkład mieszkania:
- Salon z oknem balkonowym: 18 m2
- 3 oddzielne sypialnie: 6 m2,9 m2,6 m2
- Kuchnia: 6 m2
- Łazienka: 4 m2
- WC: 1 m2
- Przedpokój: 10 m2 z miejscem na szafy
- Przynależna piwnica
- czynsz do sielanki: 1070
- Vectra ( internet 600,telewizja złoty pakiet+karta i dekoder na 2 telewizory) 129 zł
- do bloku poprowadzony jest światłowód
Dodatkowe atuty nieruchomości:
- Wyodrębniona własność, Księga Wieczysta
- Ciepła woda i ogrzewanie z sieci miejskiej (EPEC)
- Bardzo ciepłe i słoneczne mieszkanie
- Parkiet na podłogach
- Podwójne drzwi wejściowe – większe bezpieczeństwo i lepsza izolacja
- Mieszkanie po odświeżeniu, gotowe do wprowadzenia
- Domofon
- Zatwierdzone plany modernizacji budynku – nowa winda, remont dachu, izolacja ścian w piwnicach, remont balkonów, plac zabaw
Dla kogo?
- Dla rodziny: Bliskość szkół i przedszkoli zapewni komfort codziennego życia.
- Na biuro/gabinet: Parter i doskonała lokalizacja sprawiają, że mieszkanie idealnie nadaje się pod działalność gospodarczą.
- Dla inwestora: Gotowy układ pod wynajem na pokoje w centrum miasta.
Zapraszam do kontaktu i na prezentację! 💬
Ogłoszenia premium
ZatrudnięBudownictwo
Ogł. nr 910518
z 18 marca
💼 PRACA SZWECJA ⚓️
Szwedzka firma Eterni poszukuje osób do pracy do wykańczania luksusowych jachtów motorowych Windy Boats w Vä stervik, Szwecja.
ZatrudnięEdukacja
Ogł. nr 906963
z 8 marca
Zatrudnię logopedę do pracy z dziećmi w przedszkolu
ZatrudnięProdukcja
Ogł. nr 909640
z 13 marca
W związku z dynamicznym rozwojem BOMA Sp. z o. o. producent mebli
poszukuje kandydata/kandydatki na stanowisko:
OPERATOR FREZARKI przy produkcji frontów meblowych MDF
Sam. osoboweWykonam usługę za 1 000 zł
Ogł. nr 909290
z 16 marca
Szukasz taniego auta? A może chcesz szybko sprzedać swój obecny samochód? Zapraszamy do - Auto Giełdy Elbląg -
7 - Dni w tygodniu
KAZIMIERZOWO - 5 D
TEL - 575-341-870
Lokale mieszkalneSprzedam za 259 000 zł
Ogł. nr 909252
z 11 marca
👑🏠 KINGDOM 🏠👑
NIERUCHOMOŚCI BLISKO CIEBIE
WYPOSAŻONE I UMEBLOWANE 2-POKOJOWE MIESZKANIE Z BALKONEM
POŁOŻONE BLISKO STREGO MIASTA
ULICA MALBORSKA, ELBLĄG
Osoby, które zainteresowało to ogłoszenie obejrzały również:
Lokale mieszkalneSprzedam za 549 000 zł
Ogł. nr 909761
z 13 marca
Na sprzedaż mieszkanie o łącznej powierzchni 51,88 m2 zlokalizowane na parterze przy Alei Grunwaldzkiej w Elblągu. Nowsze budownictwo.
Lokale mieszkalneSprzedam za 259 000 zł
Ogł. nr 910616
z 18 marca
👑🏠 KINGDOM 🏠👑
NIERUCHOMOŚCI BLISKO CIEBIE
USTAWNE 2-POKOJOWE MIESZKANIE Z BALKONEM
W SĄSIEDZTWIE PARKU KAJKI
ULICA PŁK. DĄBKA, ELBLĄG
Lokale mieszkalneSprzedam za 395 000 zł
Ogł. nr 910371
z 17 marca
* * * ABC NIERUCHOMOŚCI * * *
NOWOŚĆ! PRZESTRONNE I SŁONECZNE MIESZKANIE Z NOWSZYCH ZASOBÓW
- 2 pokoje o pow. 54,80 m2, 3 piętro, balkon
- możliwość pozostawienia wyposażenia
- niski koszty eksploatacyjne
- Elbląg, ul. Oboźna
Więcej na stronie: https://www.abcn.pl/pl/oferta/AG02908/new/
Kontakt mailowy: ogloszenia@portel.pl





















