Lokale mieszkalneSprzedam za 860 000 zł
Ogł. nr 901995
z 24 stycznia
Dwupoziomowe mieszkanie z tarasem na osiedlu "Za Politechniką" – ul. Kossaka w Elblągu
Na sprzedaż wyjątkowe, dwupoziomowe mieszkanie o powierzchni 93,30 m², położone na III i IV. piętrze budynku z 2015 roku na osiedlu „ Za Politechniką” przy ul. Kossaka w spokojnej i dobrze skomunikowanej części miasta.
🛋️ Układ pomieszczeń:
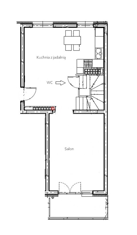
I kondygnacja:
- przestronna kuchnia z jadalnią,
- salon z wyjściem na loggię,
- toaleta z zestawem podtynkowym wc, umywalką w zabudowie meblowej oraz miejscem na pralkę,
- drewniane schody prowadzące na drugą kondygnację – obłożone deską jesionową, zwieńczone żyrandolem zwisającym przez obie kondygnacje.
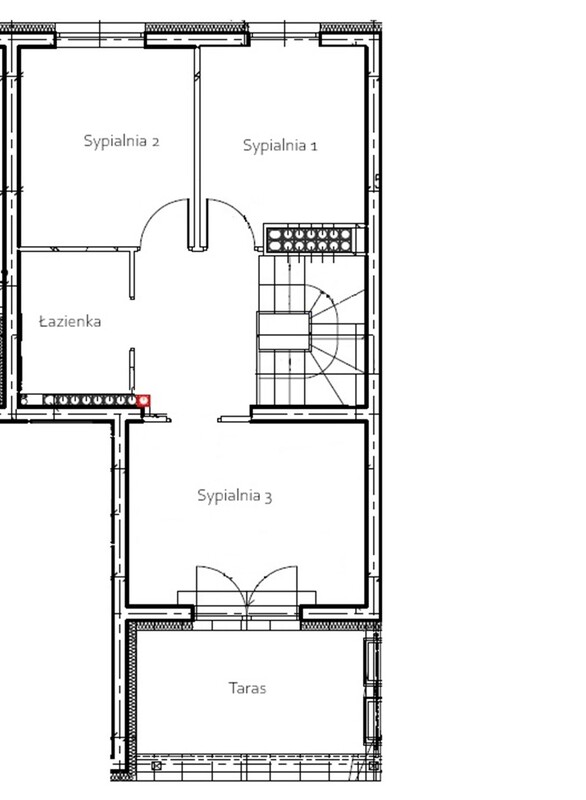
II kondygnacja:
- trzy sypialnie, w tym jedna z wyjściem na taras,
- łazienka z meblową zabudową, dwiema umywalkami, dużą kabiną prysznicową z brodzikiem z konglomeratu i zestawem WC podtynkowym,
- przedpokój.
🧱 Wykończenie i wyposażenie:
Lokal po generalnym remoncie w 2020 roku.
- Meble kuchenne wykonane na zamówienie przez firmę KAM, na systemach BLUM,
- Sprzęty AGD w zabudowie: płyta indukcyjna, piekarnik, zmywarka, lodówka,
- W łazience i toalecie: terakota na podłodze, glazura na ścianach,
- W części mieszkalnej na podłogach drewniane panele dębowe,
- Całość utrzymana w wysokim standardzie z dbałością o detale.
🌇 Dodatkowe atuty:
- loggia i taras – idealne miejsca na relaks,
- budynek z 2015 roku,
- spokojne, dobrze utrzymane osiedle,
- doskonała lokalizacja w pobliżu: przedszkole, szkoła, sklepy, poczta.
- Przed budynkiem duży parking i plac zabaw.
- Do lokalu przynależy pomieszczenie piwniczne.
💰 Cena: 860 000 zł
📅 Dostępność: od lipca 2026 roku
To mieszkanie łączy w sobie komfort domu z wygodą mieszkania w bloku – idealne dla rodziny lub osób szukających przestrzeni i funkcjonalnego układu.
Możliwość zamiany na mieszkanie o powierzchni około 60-70m2 z nowszych zasobów w podobnej lokalizacji (os. „ Za Politechniką” , ul. Sadowa, ul. Komeńskiego).
Ogłoszenia premium
ZatrudnięObsługa biurowa
Ogł. nr 902440
z 27 stycznia
Currently we are looking for: Proposal Engineer
Place of work: Elbląg / Gdańsk
Dla dzieciSprzedam za 80 zł
Ogł. nr 902431
z 27 stycznia
SPRZEDAM ŁYZWY DZIECIĘCE
ROZMIAR 30-33
ZatrudnięProdukcja
Ogł. nr 901155
z 19 stycznia
D. R.E. Sp. z o. o. z siedzibą w Gronowie Górnym przy ulicy Nefrytowej 4 poszukuje osób do wykonywania napraw elektrycznych w nowo powstającym zakładzie w Pasłęku.
ZatrudnięUsługi
Ogł. nr 901796
z 23 stycznia
Kierowca – Serwisant Toalet PrzenośnychZacznij nową pracę w młodym zespole w Elblągu!
RóżneWykonam usługę
Ogł. nr 901900
z 23 stycznia
🌳 Wycinamy i pielęgnujemy drzewa w miejscach trudno dostępnych 🌳
Podcinamy drzewa owocowe, wykonujemy cięcia techniczne, likwidujemy zagrożenia, usuwamy suche i połamane konary. Montujemy karmniki i budki dla ptaków. Szybko i skutecznie reagujemy na interwencje.
Kontakt mailowy: ogloszenia@portel.pl
























