Lokale mieszkalneSprzedam za 456 000 zł
Ogł. nr 901343
z 20 stycznia
ELBLĄG, UL. PRZYMURZE 6
STARE MIASTO
MIESZKANIE W STANIE DEWELOPERSKIM
NOWY BUDYNEK Z 2025r
2 POKOJE
POWIERZCHNIA 48 M2
MEDIA Z MIASTA
★ HAUSLAND REAL ESTATE★
MISJA: WIĘCEJ NIŻ UDANA TANSAKCJA
Dni Otwarte – tylko po wcześniejszym umówieniu.
Prezentacje nieruchomości odbywają się wyłącznie w ustalonych terminach i godzinach, po wcześniejszym kontakcie telefonicznym. Dzięki temu możemy poświęcić Ci pełną uwagę i zapewnić komfortowe warunki wizyty.
Zadzwoń już dziś i zarezerwuj dogodny termin!
Na sprzedaż nowoczesne mieszkanie położone w Elbląg, w jednej z najbardziej prestiżowych i pożądanych lokalizacji w mieście - przy ulicy Przymurze 6 na Starym Mieście. To wyjątkowa propozycja dla osób, które chcą zamieszkać w samym sercu Elbląga, w miejscu, gdzie historyczna architektura harmonijnie łączy się z nowoczesnym stylem życia. Inwestycja Przymurze 6 to elegancki, nowy budynek wielorodzinny, doskonale wpisujący się w klimat starówki oraz sąsiedztwo urokliwych kanałów, a jednocześnie oferujący wszystkie udogodnienia współczesnego budownictwa, w tym windę oraz nowoczesne rozwiązania techniczne.
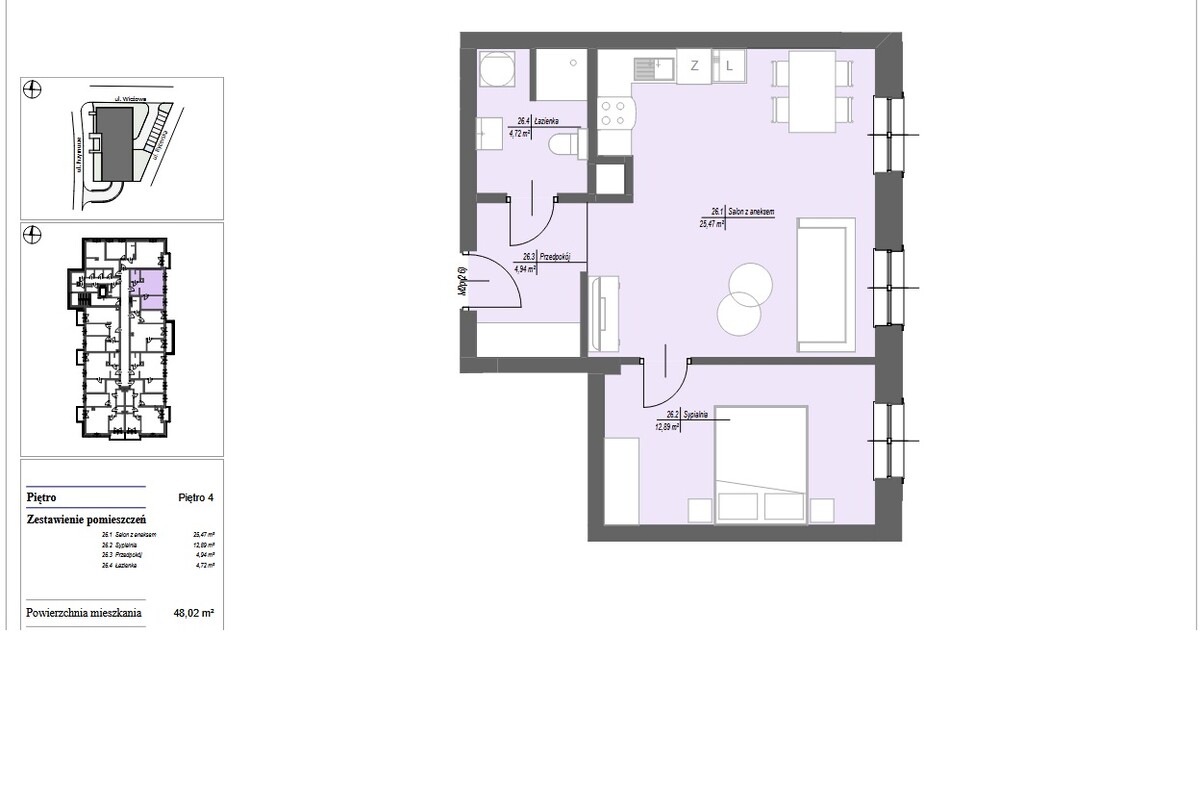
Mieszkanie znajduje się na 1.piętrze, co zapewnia idealne połączenie wygody, bezpieczeństwa i komfortu codziennego użytkowania. Lokal o powierzchni 48 m² został zaprojektowany z dużą dbałością o funkcjonalność oraz ergonomię przestrzeni. Składa się z dwóch pokoi, w tym bardzo przestronnego salonu z miejscem na aneks kuchenny, który stanowi doskonałą bazę do stworzenia nowoczesnej, jasnej strefy dziennej. Komfortowa sypialnia oferuje prywatność i spokój, a jej proporcje umożliwiają swobodną aranżację zgodnie z indywidualnymi potrzebami. Całość dopełnia łazienka oraz funkcjonalny korytarz, który zapewnia wygodną komunikację pomiędzy pomieszczeniami oraz miejsce na zabudowę.
Mieszkanie znajduje się w stanie deweloperskim, co daje przyszłemu właścicielowi pełną swobodę aranżacyjną i możliwość wykończenia wnętrza według własnego gustu, standardu i stylu życia. Budynek, w którym zlokalizowany jest lokal, został oddany do użytkowania w 2025 roku i wyróżnia się wysoką jakością wykonania, nowoczesną architekturą oraz dbałością o detale na poziomie deweloperskim. Wszystkie media w mieszkaniu pochodzą z sieci miejskiej, co zapewnia komfort oraz stabilne koszty utrzymania. Do mieszkania przynależy również komórka lokatorska, stanowiąca praktyczne i wygodne miejsce do przechowywania.
Mieszkanie:
- Salon z aneksem kuchennym ok.25,47 m2,
- Sypialnia ok.12,89 m2,
- Łazienka ok.4,72 m2,
- Korytarz ok.4,94 m2
Suma powierzchni: 48 m2.
Główne zalety nieruchomości:
- Lokalizacja na Starym Mieście,
- Nowoczesne mieszkanie w stanie deweloperskim,
- Powierzchnia 48 m² i bardzo funkcjonalny układ pomieszczeń,
- Przestronny salon z miejscem na aneks kuchenny,
- Komfortowa, ustawna sypialnia,
- Budynek oddany do użytkowania w 2025 roku,
- Wysoki standard deweloperski i dbałość o detale,
- Wszystkie media z sieci miejskiej,
- Przynależna komórka lokatorska,
- Idealne zarówno do zamieszkania, jak i jako inwestycja pod wynajem,
- I wiele więcej!
Opis lokalizacji:
Ulica Przymurze to absolutnie wyjątkowe miejsce na mapie Elbląga. Położona bezpośrednio na Starym Mieście, w sąsiedztwie zabytkowej zabudowy, kanałów i Bulwaru Zygmunta Augusta, oferuje niepowtarzalny klimat oraz prestiż, którego nie da się porównać z żadną inną częścią miasta. To lokalizacja, która pozwala cieszyć się miejskim stylem życia - restauracjami, kawiarniami, sklepami i wydarzeniami kulturalnymi - wszystko w zasięgu kilku minut spaceru, a jednocześnie zapewnia komfort, bezpieczeństwo i nowoczesną infrastrukturę.
Główne zalety lokalizacji:
- Prestiżowe położenie na Starym Mieście,
- Bezpośrednie sąsiedztwo kanałów i bulwarów spacerowych,
- Bliskość restauracji, kawiarni i punktów usługowych,
- Szybki dostęp do terenów rekreacyjnych i zielonych,
- Doskonała lokalizacja inwestycyjna z wysokim potencjałem najmu,
- Centrum miasta bez rezygnacji z komfortu i nowoczesności,
- I wiele więcej!
Przy zakupie nieruchomości należy uwzględnić koszty notarialne oraz prowizje dla biura nieruchomości w wysokości 1,23%.
Spotkaj się ze mną i zobacz, jak może wyglądać Twoje nowe mieszkanie!
HausLand Real Estate,
82-300 Elbląg, ul. Armii Krajowej 7-8/1
Treść niniejszego ogłoszenia nie stanowi oferty handlowej w rozumieniu Kodeksu Cywilnego.
Ogłoszenia premium
Domy mieszkalneSprzedam za 560 000 zł
Ogł. nr 901120
z 19 stycznia
👑🏠 KINGDOM 🏠👑
NIERUCHOMOŚCI BLISKO CIEBIE
WOLNOSTOJĄCY JEDNORODZINNY DOM
Z DUŻYM I ŁADNIE ZAGOSPODAROWANYM OGRODEM
ULICA ELBLĄSKA, ŻURAWIEC
ZatrudnięGastronomia
Ogł. nr 901810
z 23 stycznia
🍽️ Praca w Restauracji "Szalona Gęś" na Starym Mieście w Elblągu! 🍹
zatrudnimy: kelnerów i kelnerki
Szukasz ciekawej pracy? Dołącz do naszego zgranego zespołu!
Nie musisz mieć dużego doświadczenia – wszystkiego Cię nauczymy! 😊
ZatrudnięProdukcja
Ogł. nr 901153
z 19 stycznia
D. R.E. Sp. z o. o z siedzibą w Gronowie Górnym przy ulicy Nefrytowej 4 poszukuje osób do wykonywania napraw mechanicznych w nowo powstającym zakładzie w Pasłęku.
Lokale mieszkalneSprzedam za 559 000 zł
Ogł. nr 901470
z 21 stycznia
:: Biuro nieruchomości ARKADIA ::
Mieszkanie o wysokim standardzie ul. Częstochowska (Korona II)
Piętro: parter
Liczba pokoi: 3
Powierzchnia: 53,98 m²
Taras
Winda
Miejsce postojowe
GarażeWynajmę komuś za 249 zł
Ogł. nr 901476
z 21 stycznia
🏪 Wynajmę pomieszczenia magazynowe typu self storage –
Przechowamy Twoje rzeczy prywatne i firmowe, bezpiecznie, sucho, z całodobowym dostępem!
🕒Osoby, które zainteresowało to ogłoszenie obejrzały również:
Lokale mieszkalneSprzedam za 263 000 zł
Ogł. nr 901192
z 22 stycznia
NOVA STREFA NIERUCHOMOŚCI
SPRZEDAM
Mieszkanie do remontu 46,71m2 w Centrum Elbląga– ul. Giermków, 🏠
Lokale mieszkalneSprzedam za 263 000 zł
Ogł. nr 901192
z 22 stycznia
NOVA STREFA NIERUCHOMOŚCI
SPRZEDAM
Mieszkanie do remontu 46,71m2 w Centrum Elbląga– ul. Giermków, 🏠
Lokale mieszkalneSprzedam za 263 000 zł
Ogł. nr 901192
z 22 stycznia
NOVA STREFA NIERUCHOMOŚCI
SPRZEDAM
Mieszkanie do remontu 46,71m2 w Centrum Elbląga– ul. Giermków, 🏠
Kontakt mailowy: ogloszenia@portel.pl




















