Lokale mieszkalneSprzedam za 456 000 zł
Ogł. nr 907678
z 2 marca
ELBLĄG, UL. PRZYMURZE 6
STARE MIASTO
MIESZKANIE W STANIE DEWELOPERSKIM
NOWY BUDYNEK Z 2025r
2 POKOJE
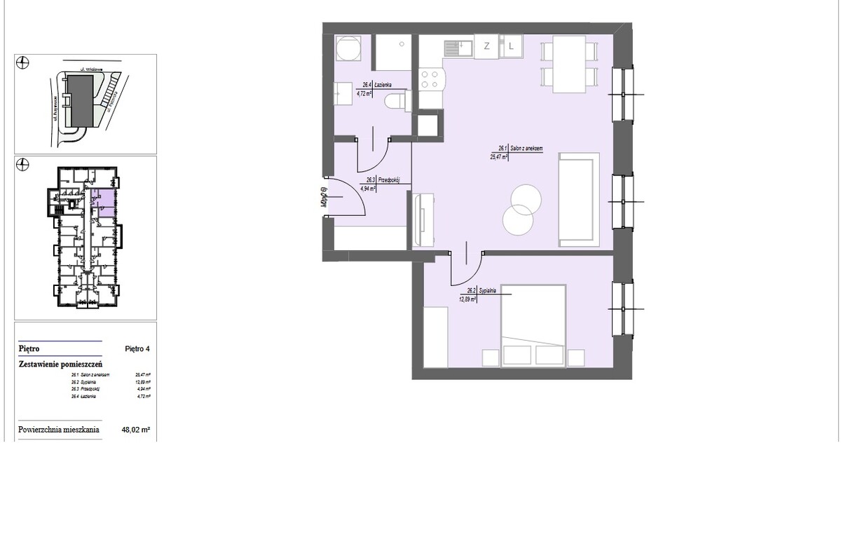
POWIERZCHNIA 48 M2
MEDIA Z MIASTA
★ HAUSLAND REAL ESTATE★
MISJA: WIĘCEJ NIŻ UDANA TANSAKCJA
Zadzwoń już dziś i zarezerwuj dogodny termin!
Na sprzedaż nowoczesne mieszkanie położone w Elbląg, w jednej z najbardziej prestiżowych i pożądanych lokalizacji w mieście - przy ulicy Przymurze 6 na Starym Mieście. To wyjątkowa propozycja dla osób, które chcą zamieszkać w samym sercu Elbląga, w miejscu, gdzie historyczna architektura harmonijnie łączy się z nowoczesnym stylem życia. Inwestycja Przymurze 6 to elegancki, nowy budynek wielorodzinny, doskonale wpisujący się w klimat starówki oraz sąsiedztwo urokliwych kanałów, a jednocześnie oferujący wszystkie udogodnienia współczesnego budownictwa, w tym windę oraz nowoczesne rozwiązania techniczne.
Mieszkanie znajduje się na 1.piętrze, co zapewnia idealne połączenie wygody, bezpieczeństwa i komfortu codziennego użytkowania. Lokal o powierzchni 48 m² został zaprojektowany z dużą dbałością o funkcjonalność oraz ergonomię przestrzeni. Składa się z dwóch pokoi, w tym bardzo przestronnego salonu z miejscem na aneks kuchenny, który stanowi doskonałą bazę do stworzenia nowoczesnej, jasnej strefy dziennej. Komfortowa sypialnia oferuje prywatność i spokój, a jej proporcje umożliwiają swobodną aranżację zgodnie z indywidualnymi potrzebami. Całość dopełnia łazienka oraz funkcjonalny korytarz, który zapewnia wygodną komunikację pomiędzy pomieszczeniami oraz miejsce na zabudowę.
Mieszkanie znajduje się w stanie deweloperskim, co daje przyszłemu właścicielowi pełną swobodę aranżacyjną i możliwość wykończenia wnętrza według własnego gustu, standardu i stylu życia. Budynek, w którym zlokalizowany jest lokal, został oddany do użytkowania w 2025 roku i wyróżnia się wysoką jakością wykonania, nowoczesną architekturą oraz dbałością o detale na poziomie deweloperskim. Wszystkie media w mieszkaniu pochodzą z sieci miejskiej, co zapewnia komfort oraz stabilne koszty utrzymania. Do mieszkania przynależy również komórka lokatorska, stanowiąca praktyczne i wygodne miejsce do przechowywania.
Mieszkanie:
- Salon z aneksem kuchennym ok.25,47 m2,
- Sypialnia ok.12,89 m2,
- Łazienka ok.4,72 m2,
- Korytarz ok.4,94 m2
Suma powierzchni: 48 m2.
Główne zalety nieruchomości:
- Lokalizacja na Starym Mieście,
- Nowoczesne mieszkanie w stanie deweloperskim,
- Powierzchnia 48 m² i bardzo funkcjonalny układ pomieszczeń,
- Przestronny salon z miejscem na aneks kuchenny,
- Komfortowa, ustawna sypialnia,
- Budynek oddany do użytkowania w 2025 roku,
- Wysoki standard deweloperski i dbałość o detale,
- Wszystkie media z sieci miejskiej,
- Przynależna komórka lokatorska,
- Idealne zarówno do zamieszkania, jak i jako inwestycja pod wynajem,
- I wiele więcej!
Opis lokalizacji:
Ulica Przymurze to absolutnie wyjątkowe miejsce na mapie Elbląga. Położona bezpośrednio na Starym Mieście, w sąsiedztwie zabytkowej zabudowy, kanałów i Bulwaru Zygmunta Augusta, oferuje niepowtarzalny klimat oraz prestiż, którego nie da się porównać z żadną inną częścią miasta. To lokalizacja, która pozwala cieszyć się miejskim stylem życia - restauracjami, kawiarniami, sklepami i wydarzeniami kulturalnymi - wszystko w zasięgu kilku minut spaceru, a jednocześnie zapewnia komfort, bezpieczeństwo i nowoczesną infrastrukturę.
Główne zalety lokalizacji:
- Prestiżowe położenie na Starym Mieście,
- Bezpośrednie sąsiedztwo kanałów i bulwarów spacerowych,
- Bliskość restauracji, kawiarni i punktów usługowych,
- Szybki dostęp do terenów rekreacyjnych i zielonych,
- Doskonała lokalizacja inwestycyjna z wysokim potencjałem najmu,
- Centrum miasta bez rezygnacji z komfortu i nowoczesności,
- I wiele więcej!
Przy zakupie nieruchomości należy uwzględnić koszty notarialne oraz prowizje dla biura nieruchomości w wysokości 1,23%.
Spotkaj się ze mną i zobacz, jak może wyglądać Twoje nowe mieszkanie!
HausLand Real Estate,
82-300 Elbląg, ul. Armii Krajowej 7-8/1
Treść niniejszego ogłoszenia nie stanowi oferty handlowej w rozumieniu Kodeksu Cywilnego.
Ogłoszenia premium
ZatrudnięProdukcja
Ogł. nr 906851
z 25 lutego
SPAWACZ MIG/MAG/TIG POD BADANIA RT
Firma ACOUSTICS działająca w branży spawanych konstrukcji metalowych, w związku z intensywnym rozwojem, poszukuje kandydatów na stanowisko:
SPAWACZ MIG/MAG/TIG POD BADANIA RT
ZatrudnięProdukcja
Ogł. nr 907222
z 27 lutego
BI-PLAST Zatrudni Operatorów Wtryskarek
Dział Tworzywa Sztuczne.
Lokale mieszkalneSprzedam za 429 000 zł
Ogł. nr 907428
z 1 marca
👑🏠 KINGDOM 🏠👑
NIERUCHOMOŚCI BLISKO CIEBIE
KOMFORTOWE 3-POKOJOWE MIESZKANIE PO GENERALNYM REMONCIE
WSZYSTKIE MEDIA Z MIASTA
POŁOŻONE W BARDZO DOBREJ LOKALIZACJI
ULICA KRÓLEWIECKA, ELBLĄG
Działki, gruntySprzedam za 1 960 000 zł
Ogł. nr 907623
z 2 marca
* * * ABC NIERUCHOMOŚCI * * *
WYJĄTKOWA DZIAŁKA INWESTYCYJNA Z WIDOKIEM NA ZALEW WIŚLANY
- powierzchnia 4 ha
- możliwość budowy osiedla domków jednorodzinnych oraz jednego dużego siedliska
- media - prąd, sieć wodociągowa oraz telekomunikacyjna, dostępne w drodze dojazdowej
- Łęcze, gm. Tolkmicko
Więcej na stronie:https://www.abcn.pl/pl/oferta/AG02791/
Oferta z filmem:http://youtube.com/watch?v=6cTrYxgdWbQ&feature=youtu.be
Lokale i budynki użytkoweSprzedam za 895 000 zł
Ogł. nr 905218
z 15 lutego
LOKAL USŁUGOWY/RESTAURACJA NA ELBLĄSKIEJ STARÓWCE
Osoby, które zainteresowało to ogłoszenie obejrzały również:
Domy mieszkalneSprzedam za 1 950 000 zł
Ogł. nr 907698
z 2 marca
TO MY SPRZEDAJEMY
NIERUCHOMOŚCI W TYM MIEŚCIE
BIURO NIERUCHOMOŚCI
AMERICAN HOME
FOR SALE - DOM UL. BUKOWA
👉 WITAJ W DOMU 👈
Domy mieszkalneSprzedam za 189 000 zł
Ogł. nr 907634
z 2 marca
* * * ABC NIERUCHOMOŚCI * * *
NOWOŚĆ! DOM W ZABUDOWIE BLIŹNIACZEJ Z DOBRYM DOJAZDEM DO MIASTA
- 2 pokoje o pow. 88 m2, działko o pow. 532 m2
- dwa budynki gospodarcze
- jednostanowiskowy, drewniany garaż
- Zielno, gm. Pasłęk
Więcej na stronie: https://www.abcn.pl/pl/oferta/AG02902/new/
Lokale mieszkalneSprzedam za 393 000 zł
Ogł. nr 907695
z 2 marca
TO MY SPRZEDAJEMY
NIERUCHOMOŚCI W TYM MIEŚCIE
BIURO NIERUCHOMOŚCI
AMERICAN HOME
FOR SALE - 2 POKOJE - RUBINOWA
(Gronowo Górne)
Kontakt mailowy: ogloszenia@portel.pl























