Lokale mieszkalneSprzedam za 295 000 zł
Ogł. nr 893028
z 25 listopada
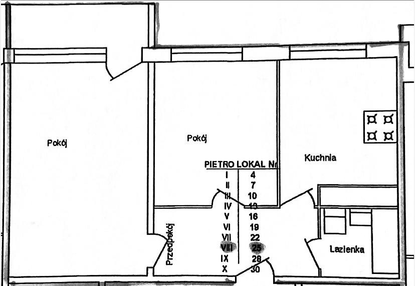
Mieszkanie 47,7 m² – 2 pokoje, osobna kuchnia – świetna lokalizacja.
Na sprzedaż funkcjonalne mieszkanie o powierzchni 47,7 m², osiedle Zawada, ul. Kasprzaka.
Układ pomieszczeń:
• salon z wyjściem na balkon,
• sypialnia,
• osobna, widna kuchnia,
• łazienka,
• przedpokój.
Mieszkanie jest do remontu, lecz jest zadbane i można zamieszkać od razu.
Pomieszczenia są kwadratowe i ustawne, co daje duże możliwości aranżacyjne.
Do mieszkania przynależy pomieszczenie piwniczne.
Lokalizacja – w najbliższym otoczeniu jest wszystko co ważne na co dzień:
• szkoła, przedszkole, żłobek,
• wygodna komunikacja miejska,
• blisko park i tereny spacerowe,
• galeria handlowa, kino, sklepy spożywcze znanych sieci,
• szybki dojazd do drogi ekspresowej.
Zapraszam do kontaktu.
Ogłoszenia premium
ZatrudnięGastronomia
Ogł. nr 894132
z 2 grudnia
🍽️ Firma Cateringowa Smakpol-Catering sp. z o. o.poszukuje pomocy kuchennej od zaraz!
Dołącz do naszego zespołu!
Praca od zaraz! Godziny pracy: 3:00– 11:00
Oferujemy: atrakcyjne zarobki, zatrudnienie na umowę
ZatrudnięUsługi
Ogł. nr 894034
z 2 grudnia
Partner Serwis – poszukuje Elektromechanika / Specjalisty Urządzeń Transportu Bliskiego
Miejsce pracy: Elbląg, Stoczniowa 2Rodzaj zatrudnienia: umowa o pracę / pełny etat
🏢 O nas
Partner Serwis to dynamicznie rozwijająca się firma świadcząca kompleksowe usługi w zakresie utrzymania ruchu, remontów i modernizacji maszyn oraz urządzeń przemysłowych. Wspieramy klientów z różnych branż, dostarczając rozwiązania techniczne najwyższej jakości
ZatrudnięGastronomia
Ogł. nr 893261
z 27 listopada
W związku z dynamicznym rozwojem, restauracja Strzecha poszukuje osoby do rozwożenia pizzy / jedzenia.
Zapewniamy nowy samochód.
Mile widziany statusu ucznia / studenta.
Poszukujemy osoby na pełny etat (do dogadania jakie dni i godziny, aby nie kolidowały z zajęciami, może być uczeń szkoły średniej / technikum/Cosinus/Żak). Wymagana dyspozycyjność w weekendy.
Prosimy o kontakt telefoniczny, wysyłanie CV na email lub przyniesienie CV do restauracji.
TransportoweWykonam usługę
Ogł. nr 893389
z 28 listopada
TRANSPORT MIĘDZYMIASTOWY, POMOC NA DRODZE
Lokale mieszkalneSprzedam za 645 000 zł
Ogł. nr 891092
z 20 listopada
🏡 PRZESTRONNE MIESZKANIE
4 POKOJE, 2 ŁAZIENKI
96 m2 - 1.PIĘTRO
DUŻY BALKON
DUŻA PIWNICA
WIDOK NA PARK🌳
- CENA DO NEGOCJACJI -
Osoby, które zainteresowało to ogłoszenie obejrzały również:
Lokale mieszkalneSprzedam za 269 000 zł
Ogł. nr 892329
z 21 listopada
RewiR Nieruchomości
Wybierz Swój❤️Wymarzony RewiR
Prezentujemy Państwu 2-pokojowe mieszkanie przy ul. Grunwaldzkiej w Elblągu usytuowane na parterze dwupiętrowej kamienicy.
Lokale mieszkalneSprzedam za 249 000 zł
Ogł. nr 889642
z 4 listopada
👑🏠 KINGDOM 🏠👑
NIERUCHOMOŚCI BLISKO CIEBIE
ATRAKCYJNA KAWALERKA Z DUŻYM BALKONEM
Z MOŻLIWOŚCIĄ ZAARANŻOWANIA NA DWA POKOJE
NA CICHYM I ZADBANYM OSIEDLU NAD JAREM
ULICA BRONIEWSKIEGO, ELBLĄG
Kontakt mailowy: ogloszenia@portel.pl











