Lokale mieszkalneSprzedam za 199 000 zł
Ogł. nr 915004
z 14 kwietnia
Sprzedam przytulną, po remoncie i w pełni umeblowaną kawalerkę w Tolkmicku
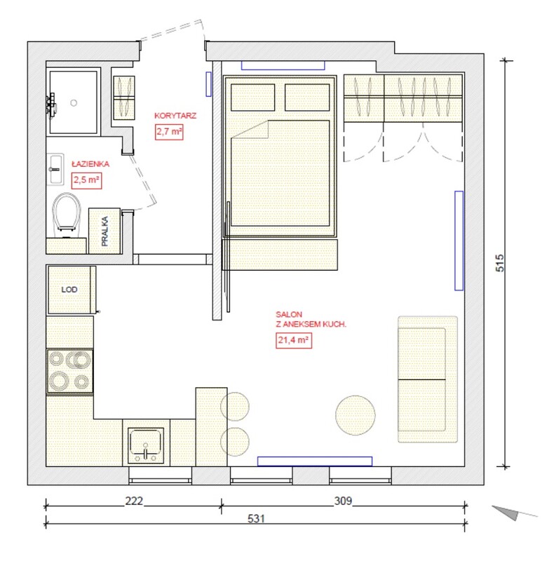
Sprzedam słoneczną i bardzo przytulną kawalerkę o powierzchni 26,57 m², położoną w Tolkmicku (I piętro). Mieszkanie przeszło generalny remont, podczas którego wymieniono m. in. instalację elektryczną, dzięki czemu lokal nie wymaga żadnych dodatkowych nakładów finansowych.
Mieszkanie jest ciepłe i słoneczne dzięki południowo-zachodniej ekspozycji, co sprawia, że przez większość dnia wpada do niej naturalne światło. Lokal jest w pełni umeblowany – wszystkie meble oraz wyposażenie widoczne na zdjęciach są wliczone w cenę, co pozwala na natychmiastowe wprowadzenie się lub szybkie rozpoczęcie wynajmu.
Atuty nieruchomości
- Po generalnym remoncie, z nową instalacją elektryczną
- Niski czynsz – jedynie 190 zł/miesiąc
- Piwnica 6 m² przynależna do lokalu
- Mieszkanie gotowe do zamieszkania od zaraz
- Sprzedaż bez pośredników
- Budynek ocieplony
- Brak zagrożenia powodziowego
- Dwie opcje ogrzewania- elektryczne lub możliwość korzystania z pieca c. o.znajdującego się w piwnicy
- Słoneczne wnętrze dzięki południowo-zachodniej ekspozycji
- Świetna lokalizacja – blisko sklepy, punkty usługowe, tereny zielone
To doskonała propozycja dla osób szukających niewielkiego, funkcjonalnego mieszkania lub jako inwestycja pod wynajem.
Więcej informacji udzielę telefonicznie.
Ogłoszenia premium
Praca - zatrudnięLogistyka
Ogł. nr 914192
z 9 kwietnia
Hurtownia Płyt Bomar
Zatrudni osobę na stanowisko
MAGAZYNIER
Praca - zatrudnięGastronomia
Ogł. nr 914627
z 12 kwietnia
🍽️ Firma Cateringowa Smakpol-Catering sp. z o. o.poszukuje pomocy kuchennej od zaraz!
Dołącz do naszego zespołu! Praca od zaraz!Godziny pracy: 8:00-16:00,7:00-15:00 lub 9:00-17:00Oferujemy: atrakcyjne zarobki, zatrudnienie na umowę 😊
Sam. osoboweWykonam usługę za 150 zł
Ogł. nr 915216
z 15 kwietnia
CHCESZ SPRZEDAĆ SWOJEGO BUSA ????
AUTO SPA ZAPRASZA
*** PODWYŻSZYMY CENE TWOJEGO BUSA
- Kompleksowe przygotowanie samochodu do sprzedaży dla klientów indywidualnych, komisów
Obsługa samochodów flotowych, osobowych, dostawczych w zakresie utrzymania bieżącego porządku
Powłoki kwarcowo – ceramiczne
Korekta lakieru, korekta reflektorów
Pranie tapicerki samochodowej
Czyszczenie tapicerki skórzanej
Zabezpieczenie lakieru woskiem / maszynowo
Praca - zatrudnięProdukcja
Ogł. nr 914622
z 12 kwietnia
Zakład Produkcyjny Mebli i Wyrobów z Drewna „ JANSTOL” w miejscowości Krzewsk k. Elbląga zatrudnimy:
- Pracowników Produkcji Podstawowej w Drewnie
- Pomocnika do lekkich prac stolarskich
🌳Dołącz do Naszego Zespołu!🌳
MOŻLIWOŚĆ ROZPOCZĘCIA PRACY OD ZARAZ
Praca - zatrudnięEdukacja
Ogł. nr 914773
z 13 kwietnia
Zatrudnię PEDAGOGA SPECJALNEGO oraz PSYCHOLOGA do pracy z dziećmi w przedszkolu
Kontakt mailowy: ogloszenia@portel.pl

















