Lokale mieszkalneSprzedam za 580 000 zł
Ogł. nr 902705
z 29 stycznia
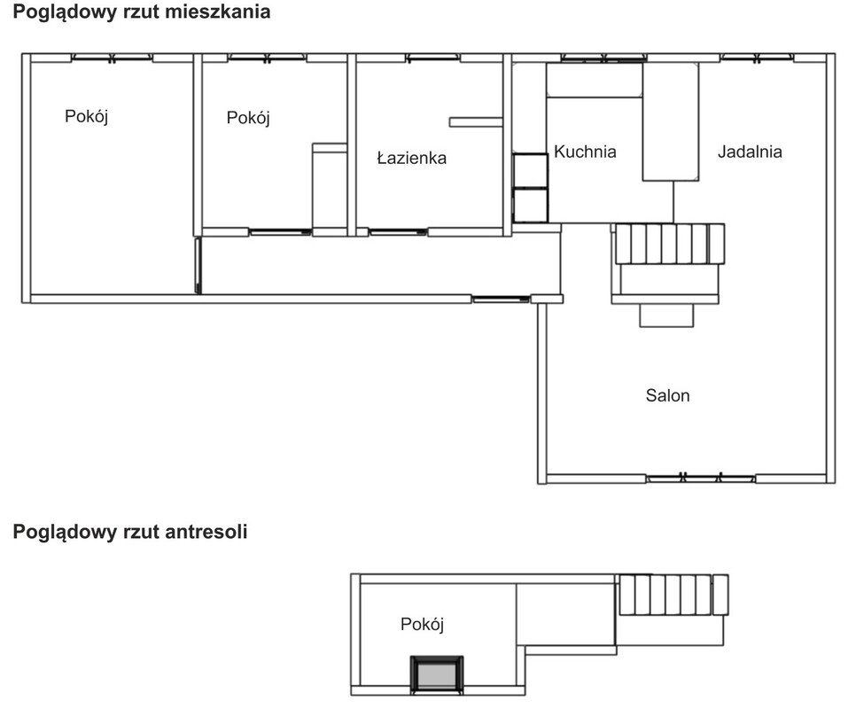
WGN Nieruchomości oddział Elbląg prezentuję Państwu ofertę mieszkania gotowego do wprowadzenia o powierzchni 72,7m2,2 piętro, antresola, ul. Grottgera 3.
WGN Nieruchomości oddział Elbląg prezentuję Państwu ofertę mieszkania gotowego do wprowadzenia o powierzchni 72,7m2,2 piętro, antresola, ul. Grottgera 3.
Lokalizacja:
Mieszkanie zlokalizowane na osiedlu Warszawskie Przedmieście. Osiedle bardzo zadbane, zlokalizowane blisko centrum miasta, duża liczba punktów usługowo-handlowych, bezpieczne, przyjazne rodzinom z dziećmi liczne wygrodzone place zabaw, przyjazne osobom starszym duża liczba drzew i krzewów oraz ławek. Bardzo dobrze rozwinięta infrastruktura, na wyciągnięcie ręki liczne punkty handlowe takie jak Stokrotka, Biedronka, Lidl, Żabka, Rossman, Apteka, Piekarnia, Sklep mięsny Jaga, stacja benzynowa. Liczne punkty usługowe: Kwiaciarnia, Fryzjer, Siłownia, Salony urody, Poczta, Paczkomat. W pobliżu żłobki, przedszkola w tym znane i lubiane przedszkole Mały Europejczyk, Szkoła Podstawowa, Zespół Szkół Technicznych i Elbląska Akademia Nauk Stosowanych. Przystanek komunikacji miejskiej w pobliżu budynku.
Budynek:
Dwupiętrowa kamienica. Budynek częściowo po termomodernizacji oraz remoncie dachu. Miejsca parkingowe dostępne przy budynku, lub na pobliskim parkingu przy PWSZ. Za budynkiem znajdują się przydomowe ogródki do korzystania przez mieszkańców bloku – nie są one jednak własnością lokatorów. Wejście do budynku zabezpieczone domofonem.
Mieszkanie:
Słoneczne, funkcjonalne i ustawne 3 pokojowe mieszkanie z antresolą. Mieszkanie dwustronne w stylu skandynawski składa się z;
- otwartego salonu,
- jadalni z kuchnią,
- 2 oddzielnych sypialni,
- łazienki z WC z zamontowaną wanną i prysznicem,
- przedpokoju.
Nieruchomość, zadbana i gotowa do wprowadzenia. Na podłogach deska drewniana, to rozwiązanie dla osób kochających drewno i idealnie wpisujące się w styl mieszkania oraz samej kamienicy. Pokoje ustawne, z dużymi oknami (PCV), zapewniającymi sporo naturalnego światła. Duża kuchnia zabudowana ze sprzętami AGD w cenie mieszkania. Łazienka z oknem. W salonie dodatkowo wejście na antresole to dodatkowe ok.9m2 powierzchni, w której obecnie znajduje się dodatkowa sypialnia z liczną zabudową stolarską. Do mieszkania przynależy duża piwnica, nie przypisana do lokalu w księdze wieczystej. Mieszkanie ogrzewane za pomocą pieca dwu funkcyjnego na gaz, który został wymieniony 2 lata temu. Czynsz do wspólnoty wynosi 390zł.
Już dziś mogą Państwo zostać nowymi właścicielami tego mieszkania, zapraszamy na prezentację.
Nasz doradca kredytowy pomoże w udzieleniu pełnej informacji kredytowej na zakup nieruchomości, pomoże we wszystkich formalnościach oraz w trudnych i zawiłych sytuacjach.
Ogłoszenia premium
ZatrudnięProdukcja
Ogł. nr 902582
z 28 stycznia
MEBLE WÓJCIK SP. Z O. O.
POSZUKUJE
KOORDYNATORA/KI WYDZIAŁU PRODUKCYJNEGO
MebleWykonam usługę
Ogł. nr 902245
z 26 stycznia
TRANSPORT, PRZEPROWADZKI, WYWÓZ ŚMIECI- usługi transportowe "ADAM"
- Przeprowadzki pokoju, mieszkania, domu, usługi przeprowadzkowe.
- Montaż i domontaż mebli i sprzętu
- Wywóz przedmiotów gabarytowych, śmieci, gruzu, czyszczenie pomieszczeń
- Transport pojedynczych mebli i sprzetu AGD, taksówki bagażowe
- Przeprowadzki firm, biur, magazynów, transport mebli.
- Usługi transportowe materiałów budowlanych i innych, taxi bagażowe
- Przewozy lokalne i długodystansowe w kraju i Europie usługi transportowe
Lokale mieszkalneSprzedam za 855 000 zł
Ogł. nr 902713
z 29 stycznia
⭐ ⭐ ⭐ ⭐ ⭐
FiDU Biuro Nieruchomości prezentuje:
🏡 Duże wyjątkowe mieszkanie na sprzedaż: Elbląg, ul. Łęczycka -Wysoki standard, gotowe do zamieszkania!
Powierzchnia: 81,43 m²
Liczba pokoi: 4
Piętro: 3 z 3
Balkon: (duży)Winda
ZatrudnięMotoryzacja
Ogł. nr 901178
z 19 stycznia
Zatrudnimy osobę na stanowisko Mechanika Samochodowego
Lokale mieszkalneSprzedam za 499 000 zł
Ogł. nr 902839
z 30 stycznia
👑🏠 KINGDOM 🏠👑
NIERUCHOMOŚCI BLISKO CIEBIE
PRZESTRONNE 4-POKOJOWE MIESZKANIE Z BALKONEM
UMEBLOWANE I WYPOSAŻONE
POŁOŻONE NA ZADBANYM OSIEDLU
ULICA TOPOLOWA, ELBLĄG
Kontakt mailowy: ogloszenia@portel.pl




















