Lokale mieszkalneSprzedam za 549 000 zł
Ogł. nr 905645
z 17 lutego
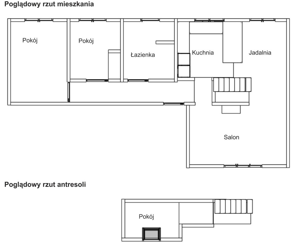
WGN Nieruchomości oddział Elbląg prezentuję Państwu ofertę mieszkania gotowego do wprowadzenia o powierzchni 72,7m2,2 piętro, antresola, ul. Grottgera 3.
WGN Nieruchomości oddział Elbląg prezentuję Państwu ofertę mieszkania gotowego do wprowadzenia o powierzchni 72,7m2,2 piętro, antresola, ul. Grottgera 3.
Lokalizacja:
Mieszkanie zlokalizowane na osiedlu Warszawskie Przedmieście. Osiedle bardzo zadbane, zlokalizowane blisko centrum miasta, duża liczba punktów usługowo-handlowych, bezpieczne, przyjazne rodzinom z dziećmi liczne wygrodzone place zabaw, przyjazne osobom starszym duża liczba drzew i krzewów oraz ławek. Bardzo dobrze rozwinięta infrastruktura, na wyciągnięcie ręki liczne punkty handlowe takie jak Stokrotka, Biedronka, Lidl, Żabka, Rossman, Apteka, Piekarnia, Sklep mięsny Jaga, stacja benzynowa. Liczne punkty usługowe: Kwiaciarnia, Fryzjer, Siłownia, Salony urody, Poczta, Paczkomat. W pobliżu żłobki, przedszkola w tym znane i lubiane przedszkole Mały Europejczyk, Szkoła Podstawowa, Zespół Szkół Technicznych i Elbląska Akademia Nauk Stosowanych. Przystanek komunikacji miejskiej w pobliżu budynku.
Budynek:
Dwupiętrowa kamienica. Budynek częściowo po termomodernizacji oraz remoncie dachu. Miejsca parkingowe dostępne przy budynku, lub na pobliskim parkingu przy PWSZ. Za budynkiem znajdują się przydomowe ogródki do korzystania przez mieszkańców bloku – nie są one jednak własnością lokatorów. Wejście do budynku zabezpieczone domofonem.
Mieszkanie:
Słoneczne, funkcjonalne i ustawne 3 pokojowe mieszkanie z antresolą. Mieszkanie dwustronne w stylu skandynawski składa się z;
- otwartego salonu,
- jadalni z kuchnią,
- 2 oddzielnych sypialni,
- łazienki z WC z zamontowaną wanną i prysznicem,
- przedpokoju.
Nieruchomość, zadbana i gotowa do wprowadzenia. Na podłogach deska drewniana, to rozwiązanie dla osób kochających drewno i idealnie wpisujące się w styl mieszkania oraz samej kamienicy. Pokoje ustawne, z dużymi oknami (PCV), zapewniającymi sporo naturalnego światła. Duża kuchnia zabudowana ze sprzętami AGD w cenie mieszkania. Łazienka z oknem. W salonie dodatkowo wejście na antresole to dodatkowe ok.9m2 powierzchni, w której obecnie znajduje się dodatkowa sypialnia z liczną zabudową stolarską. Do mieszkania przynależy duża piwnica, nie przypisana do lokalu w księdze wieczystej. Mieszkanie ogrzewane za pomocą pieca dwu funkcyjnego na gaz, który został wymieniony 2 lata temu. Czynsz do wspólnoty wynosi 390zł.
Już dziś mogą Państwo zostać nowymi właścicielami tego mieszkania, zapraszamy na prezentację.
Nasz doradca kredytowy pomoże w udzieleniu pełnej informacji kredytowej na zakup nieruchomości, pomoże we wszystkich formalnościach oraz w trudnych i zawiłych sytuacjach.
Ogłoszenia premium
ZatrudnięProdukcja
Ogł. nr 905024
z 13 lutego
MEBLOLAND 1973 - Producent Mebli
Zatrudni na stanowiska :
- Stolarz Maszynowy
- Montażysta Mebli
- Pomocnik
ZatrudnięProdukcja
Ogł. nr 905098
z 14 lutego
BI-PLAST Zatrudni Operatorów Wtryskarek
Dział Tworzywa Sztuczne.
Lokale mieszkalneSprzedam za 829 000 zł
Ogł. nr 905633
z 17 lutego
👑🏠 KINGDOM 🏠👑
NIERUCHOMOŚCI BLISKO CIEBIE
PRZESTRONNE, NOWOCZEŚNIE URZĄDZONE 4-POKOJOWE MIESZKANIE
Z DUŻĄ LOGGIĄ I BALKONEM
POŁOŻONE NA TRZECIM PIĘTRZE W EL-TOWER
ULICA MIELCZARSKIEGO, ELBLĄG
Lokale mieszkalneWynajmę komuś za 2 000 zł
Ogł. nr 904974
z 13 lutego
FUTURE NIERUCHOMOŚCI
Wynajmę mieszkanie - Elbląg, Marcina Kasprzaka
DUŻE, PRZESTRONNE MIESZKANIE Z BALKONEM
CENA WYNAJMU 2000 zł
POWIERZCHNIA: 61,4 m2
VIII PIĘTRO
MEDIA Z MIASTA
NAJEM OKAZJONALNY
ZatrudnięProdukcja
Ogł. nr 904972
z 13 lutego
Firma DRE to prężnie działające przedsiębiorstwo specjalizujące się w produkcji skrzydeł drzwiowych i ościeżnic. Wieloletnie doświadczenie w połączeniu z nowoczesną technologią i wykwalifikowaną kadrą pozwala Firmie utrzymać się w ścisłej czołówce polskich producentów drzwi.
Obecnie poszukujemy osób do pracy na magazynie
Osoby, które zainteresowało to ogłoszenie obejrzały również:
ZatrudnięOchrona
Ogł. nr 905778
z 18 lutego
Zatrudnię stróża nocnego
ZatrudnięKsięgowość
Ogł. nr 905703
z 18 lutego
LIRA LIGHTING - jesteśmy producentem oświetlenia, który cały cykl technologiczny, od projektu, poprzez prototypowanie, po produkcję, realizuje pod jednym dachem, w nowoczesnym zakładzie produkcyjnym. Tworzymy rozwiązania dla wymagających projektowo inwestycji. Oferujemy środowisko pracy, w którym cenimy inicjatywę, zaangażowanie oraz wzajemne zaufanie
SAMODZIELNA/NY KSIĘGOWA/WY
Kontakt mailowy: ogloszenia@portel.pl





















