Lokale mieszkalneSprzedam za 509 000 zł
Ogł. nr 909847
z 14 marca
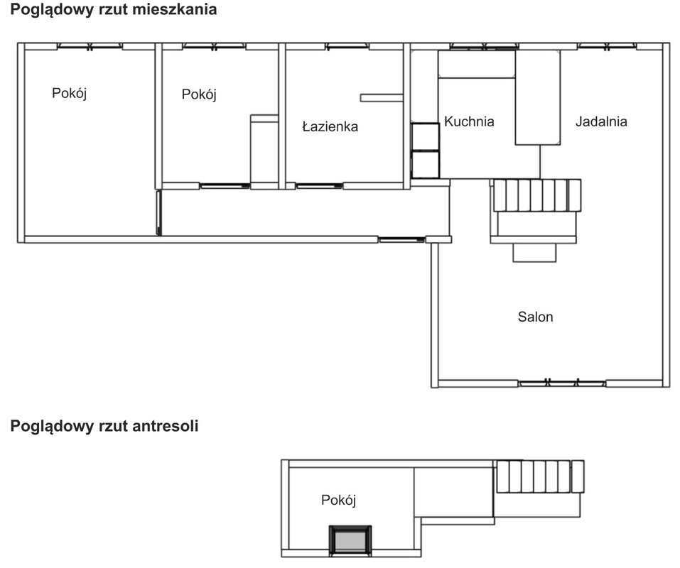
WGN Nieruchomości oddział Elbląg prezentuję Państwu ofertę mieszkania gotowego do wprowadzenia o powierzchni 72,7m2,2 piętro, antresola, ul. Grottgera 3.
WGN Nieruchomości oddział Elbląg prezentuję Państwu ofertę mieszkania gotowego do wprowadzenia o powierzchni 72,7m2,2 piętro, antresola, ul. Grottgera 3.
Lokalizacja:
Mieszkanie zlokalizowane na osiedlu Warszawskie Przedmieście. Osiedle bardzo zadbane, zlokalizowane blisko centrum miasta, duża liczba punktów usługowo-handlowych, bezpieczne, przyjazne rodzinom z dziećmi liczne wygrodzone place zabaw, przyjazne osobom starszym duża liczba drzew i krzewów oraz ławek. Bardzo dobrze rozwinięta infrastruktura, na wyciągnięcie ręki liczne punkty handlowe takie jak Stokrotka, Biedronka, Lidl, Żabka, Rossman, Apteka, Piekarnia, Sklep mięsny Jaga, stacja benzynowa. Liczne punkty usługowe: Kwiaciarnia, Fryzjer, Siłownia, Salony urody, Poczta, Paczkomat. W pobliżu żłobki, przedszkola w tym znane i lubiane przedszkole Mały Europejczyk, Szkoła Podstawowa, Zespół Szkół Technicznych i Elbląska Akademia Nauk Stosowanych. Przystanek komunikacji miejskiej w pobliżu budynku.
Budynek:
Dwupiętrowa kamienica. Budynek częściowo po termomodernizacji oraz remoncie dachu. Miejsca parkingowe dostępne przy budynku, lub na pobliskim parkingu przy PWSZ. Za budynkiem znajdują się przydomowe ogródki do korzystania przez mieszkańców bloku – nie są one jednak własnością lokatorów. Wejście do budynku zabezpieczone domofonem.
Mieszkanie:
Słoneczne, funkcjonalne i ustawne 3 pokojowe mieszkanie z antresolą. Mieszkanie dwustronne w stylu skandynawski składa się z;
- otwartego salonu,
- jadalni z kuchnią,
- 2 oddzielnych sypialni,
- łazienki z WC z zamontowaną wanną i prysznicem,
- przedpokoju.
Nieruchomość, zadbana i gotowa do wprowadzenia. Na podłogach deska drewniana, to rozwiązanie dla osób kochających drewno i idealnie wpisujące się w styl mieszkania oraz samej kamienicy. Pokoje ustawne, z dużymi oknami (PCV), zapewniającymi sporo naturalnego światła. Duża kuchnia zabudowana ze sprzętami AGD w cenie mieszkania. Łazienka z oknem. W salonie dodatkowo wejście na antresole to dodatkowe ok.9m2 powierzchni, w której obecnie znajduje się dodatkowa sypialnia z liczną zabudową stolarską. Do mieszkania przynależy duża piwnica, nie przypisana do lokalu w księdze wieczystej. Mieszkanie ogrzewane za pomocą pieca dwu funkcyjnego na gaz, który został wymieniony 2 lata temu. Czynsz do wspólnoty wynosi 390zł.
Już dziś mogą Państwo zostać nowymi właścicielami tego mieszkania, zapraszamy na prezentację.
Nasz doradca kredytowy pomoże w udzieleniu pełnej informacji kredytowej na zakup nieruchomości, pomoże we wszystkich formalnościach oraz w trudnych i zawiłych sytuacjach.
Ogłoszenia premium
ZatrudnięProdukcja
Ogł. nr 909131
z 10 marca
🔧 Firma AROTEC poszukuje kandydatów na stanowisko:
Frezer CNC
Wytaczarz CNC
Lokale mieszkalneSprzedam za 329 000 zł
Ogł. nr 909397
z 11 marca
⭐ ⭐ ⭐ ⭐ ⭐
FiDU Biuro Nieruchomości prezentuje:
🌟 GOTOWE DO WPROWADZENIA! 💎 Na parterze 2 pokoje po remoncie, z Pełnym Wyposażeniem!
📐 pow. 43,32 m² 📍 ul. Bażyńskiego, Elbląg
🌐 fidunieruchomosci. pl
Domy mieszkalneSprzedam za 689 000 zł
Ogł. nr 909863
z 14 marca
👑🏠 KINGDOM 🏠👑
NIERUCHOMOŚCI BLISKO CIEBIE
DOM JEDNORODZINNY W ZABUDOWIE BLIŹNIACZEJ
OTOCZONY BARDZO ŁADNYM I ZAGOSPODAROWANYM OGRODEM
Z GARAŻEM I BUDYNKIEM GOSPODARCZYM
ULICA WYBUDÓWKA BIAŁA, TOLKMICKO
CENA DO NEGOCJACJI
Sam. osoboweKupię
Ogł. nr 906467
z 5 marca
🔥 ELBLĄSKIE CENTRUM SKUPU AUT🔥
SKUP AUT 24h – Skupujemy Samochody Osobowe i Dostawcze!
Tel: 602-454-956
Potrzebujesz szybkiej gotówki? Zadzwoń do nas – jesteśmy dostępni 24h na dobę!
ZatrudnięProdukcja
Ogł. nr 909266
z 11 marca
Firma Schmid Polska Sp. z o. o. jest największym zakładem należącym do Grupy Schmid – szwajcarskiego producenta systemów energetycznego wykorzystania biomasy drzewnej. Od 1936 roku Schmid wspiera rozwój nowoczesnej energetyki dzięki innowacyjnym rozwiązaniom i zrównoważonym usługom.
Obecnie poszukujemy w Elblągu zaangażowanej, niezawodnej i dynamicznej osoby, która dołączy do naszego zespołu na stanowisko:
Specjalista/Specjalistka ds. zakupów
Osoby, które zainteresowało to ogłoszenie obejrzały również:
ZatrudnięBudownictwo
Ogł. nr 909764
z 13 marca
Dam Pracę - SAMODZIELNA OSOBA z PRAWEM JAZDY minimum kat. B do PRAC KONSERWATORSKICH, INTERWENCYJNYCH, SERWISOWYCH.. REMONTY * WYKOŃCZENIA * OGRODZENIA * PRACE BRUKARSKIE
Szukam pracy
Ogł. nr 909760
z 13 marca
Kontakt mailowy: ogloszenia@portel.pl





















